|
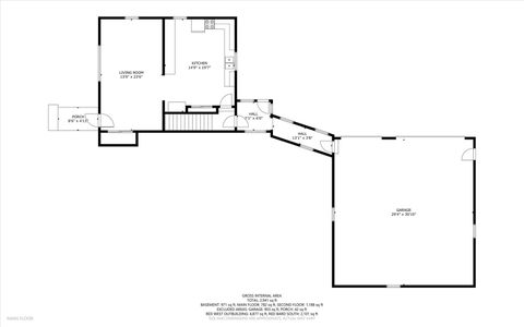
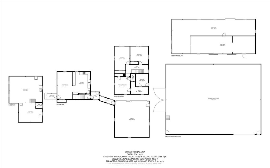
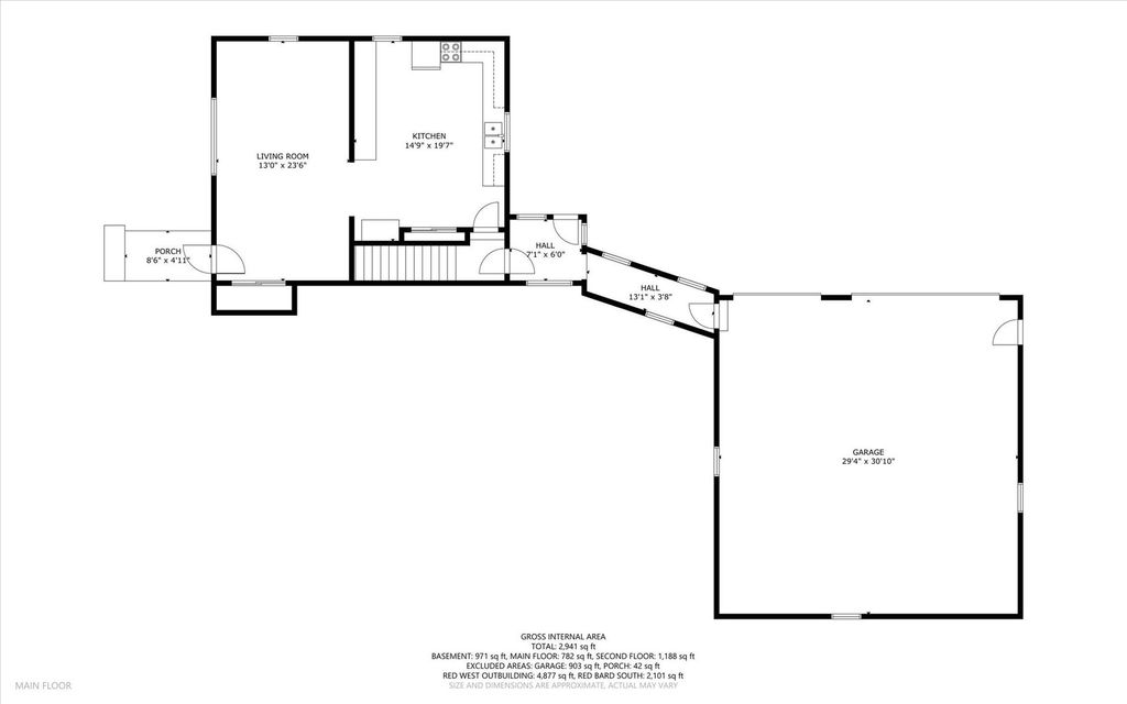
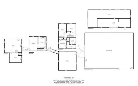
Endless potential awaits on this picturesque 15-acre farmette offering a perfect blend of rural charm and future opportunity. The spacious 4-bedroom farmhouse features a huge eat-in kitchen ideal for gatherings, a large living room, dedicated office space, basement, and additional rooms on the second floor-providing plenty of flexibility for growing families, hobbies, or work-from-home needs. Key updates include a newer boiler for hot water heat and a roof approximately 13 years old. The property is well-equipped for farming, storage, or business use with multiple outbuildings, including a 60x80 pole barn, a 30x45 pole barn with concrete floor, a 30x70 shed with concrete floor, and an attached 30x30 garage. Set on a beautiful mix of 6 acres of farmland, 5 acres of mature woods, and 4 acres surrounding the home and buildings, this property offers both privacy and usability. Positioned in a highly desirable location adjacent to Leggee elementary school, with city water and sewer nearby, this is an outstanding opportunity for future development, investment, or creating your dream homestead. A rare find with space, versatility, and long-term potential-don't miss it!
| DAYS ON MARKET | 1 | LAST UPDATED | 4/9/2026 |
|---|---|---|---|
| YEAR BUILT | 1940 | COMMUNITY | Huntley |
| GARAGE SPACES | 2.0 | COUNTY | McHenry |
| STATUS | Active | PROPERTY TYPE(S) | Single Family |
| School District | Huntley High School |
|---|---|
| Elementary School | Leggee Elementary School |
| High School | Huntley High School |
| ADDITIONAL DETAILS | |
| AIR | None |
|---|---|
| AREA | Huntley |
| BASEMENT | Full, Unfinished, Yes |
| CONSTRUCTION | Aluminum Siding |
| GARAGE | Attached Garage, Yes |
| HEAT | Natural Gas, Steam |
| LOT | 15 acre(s) |
| LOT DESCRIPTION | Irregular Lot, Wooded |
| LOT DIMENSIONS | 1500x300 |
| PARKING | Gravel, Garage Door Opener, Attached, Garage |
| SEWER | Septic Tank |
| STYLE | Farmhouse |
| TAXES | 12047 |
| WATER | Well |
MORTGAGE CALCULATOR
TOTAL MONTHLY PAYMENT
0
P
I
*Estimate only
| SATELLITE VIEW |
| / | |
We respect your online privacy and will never spam you. By submitting this form with your telephone number
you are consenting for Humderto
Garcia to contact you even if your name is on a Federal or State
"Do not call List".
Listed with RE/MAX Connections II
The data relating to real estate for sale on this web site comes in part from the Broker ReciprocitySM Program of MRED. All real estate listings are marked with the Broker ReciprocitySM logo or the MRED Broker ReciprocitySM thumbnail logo (a little black house) and detailed information about them includes the name of the listing brokers.
The broker providing these data believes them to be correct, but advises interested parties to confirm them before relying on them in a purchase decision.
Copyright 2026 MRED. All rights reserved.

The broker providing these data believes them to be correct, but advises interested parties to confirm them before relying on them in a purchase decision.
Copyright 2026 MRED. All rights reserved.
This IDX solution is (c) Diverse Solutions 2026.