|
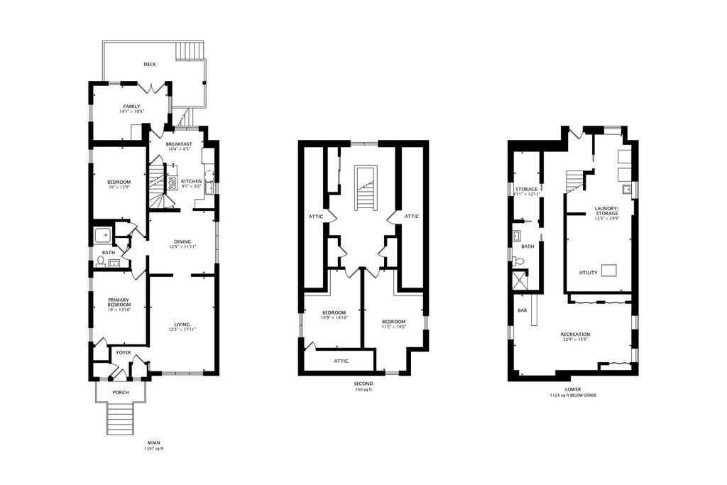
Beautiful, all-brick home offering surprising space and generously sized rooms-proudly owned by only its second owner! This well-maintained property features numerous updates throughout, including newer windows (2019), leaf guard gutters, and a stunning eat-in kitchen remodeled in 2020 with cream-colored cabinetry, granite countertops, and stainless-steel appliances. Recent improvements add even more value and peace of mind: front and rear exterior doors replaced within the past 6 months, brand-new front concrete steps (Summer 2025), updated copper plumbing, a newer electrical panel, rebuilt chimney (2022), tankless water heater (2024), and a furnace and central A/C system approximately 6 years old. The home is also equipped with Xpert Flood Control and a sump pump replaced just 2 years ago. The main level boasts beautiful hardwood floors in the living room and formal dining room, along with two spacious bedrooms. A charming three-season room just off the kitchen overlooks the backyard deck-perfect for relaxing or entertaining. Upstairs, you'll find two additional large bedrooms with high ceilings and vinyl plank flooring installed in 2022. The finished basement expands your living space with a cozy family room, a full bathroom with shower, a roughed-in wet bar ready for your personal touch, and ample storage. 2 blocks to Onahan School. Ideally located just minutes from O'Hare International Airport, Superdawg, Walgreens, the 90 expressway, and the vibrant neighborhoods of Edison Park, Park Ridge, and Niles-plus nearby forest preserves and parks-this home truly offers both comfort and convenience.
| DAYS ON MARKET | 1 | LAST UPDATED | 4/8/2026 |
|---|---|---|---|
| YEAR BUILT | 1939 | COMMUNITY | CHI - Norwood Park |
| GARAGE SPACES | 2.0 | COUNTY | Cook |
| STATUS | Active | PROPERTY TYPE(S) | Single Family |
| School District | Taft High School |
|---|---|
| Elementary School | Onahan Elementary School |
| High School | Taft High School |
| ADDITIONAL DETAILS | |
| AIR | Ceiling Fan(s), Central Air |
|---|---|
| AIR CONDITIONING | Yes |
| APPLIANCES | Dishwasher, Range, Refrigerator, Stainless Steel Appliance(s) |
| AREA | CHI - Norwood Park |
| BASEMENT | Finished, Full, Sump Pump, Yes |
| CONSTRUCTION | Brick, Vinyl Siding |
| GARAGE | Yes |
| HEAT | Forced Air, Natural Gas |
| INTERIOR | Granite Counters |
| LOT | 0 |
| LOT DIMENSIONS | 30x129 |
| PARKING | Garage Door Opener, Detached, Garage |
| SEWER | Public Sewer |
| STYLE | Tudor |
| TAXES | 8178.07 |
MORTGAGE CALCULATOR
TOTAL MONTHLY PAYMENT
0
P
I
*Estimate only
| / | |
We respect your online privacy and will never spam you. By submitting this form with your telephone number
you are consenting for Humderto
Garcia to contact you even if your name is on a Federal or State
"Do not call List".
Listed with @properties Christies International Real Estate
The data relating to real estate for sale on this web site comes in part from the Broker ReciprocitySM Program of MRED. All real estate listings are marked with the Broker ReciprocitySM logo or the MRED Broker ReciprocitySM thumbnail logo (a little black house) and detailed information about them includes the name of the listing brokers.
The broker providing these data believes them to be correct, but advises interested parties to confirm them before relying on them in a purchase decision.
Copyright 2026 MRED. All rights reserved.

The broker providing these data believes them to be correct, but advises interested parties to confirm them before relying on them in a purchase decision.
Copyright 2026 MRED. All rights reserved.
This IDX solution is (c) Diverse Solutions 2026.