|
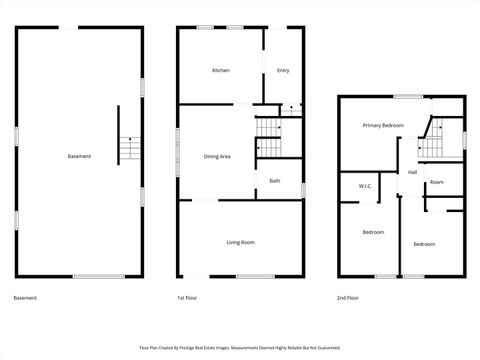
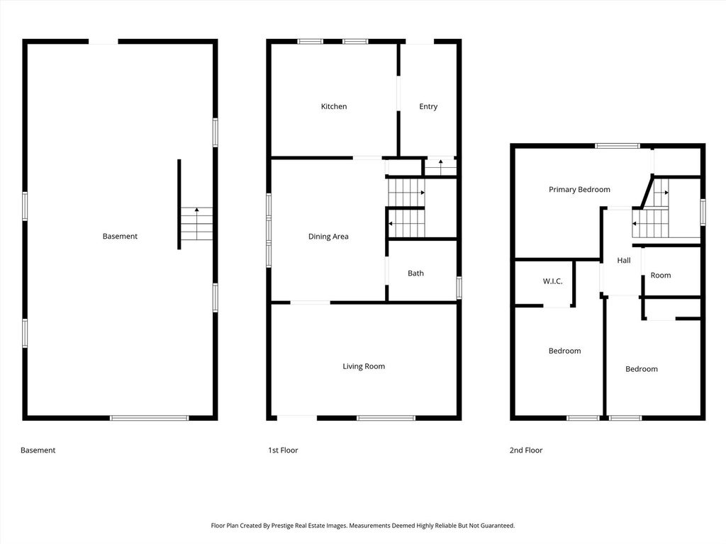
Welcome home! This home has been completely redone-from the new roof and newly replaced and painted aluminum siding with updated plywood, to fresh drywall, new flooring, and everything in between. Enjoy durable vinyl plank flooring throughout, complemented by custom wood stairs that add beauty while making cleanup easy. The brand-new kitchen features modern cabinets, and granite countertops for a fresh, contemporary look. Elegant recessed lighting adds a bright and stylish touch throughout the home. You can rest easy knowing this home has been updated with new attic insulation, a 200-amp electrical panel, and new electrical and plumbing throughout the home. Enjoy long hot showers while saving on energy costs with the new 40-gallon, efficiency water heater. The upstairs bathroom already has all the plumbing in place for a full bath and is currently being used as a closet, offering a great opportunity for customization. This home will stay warm in the winter and cool in the summer thanks to its upgraded insulation and new HVAC and A/C unit. This home is completely move-in ready. You will love your days/nights out on the front and back porches competed in 2020. Nothing to do but move in and relax!
FORECLOSURE
| DAYS ON MARKET | 27 | LAST UPDATED | 4/20/2026 |
|---|---|---|---|
| YEAR BUILT | 1878 | COMMUNITY | CHI - Auburn Gresham |
| COUNTY | Cook | STATUS | Conditional |
| PROPERTY TYPE(S) | Single Family |
| School District | Simeon Career Academy High Schoo |
|---|---|
| Elementary School | Woodlawn Elementary School Commu |
| Jr. High School | Gresham Elementary School |
| High School | Simeon Career Academy High Schoo |
| ADDITIONAL DETAILS | |
| AIR | Ceiling Fan(s), Central Air |
|---|---|
| AIR CONDITIONING | Yes |
| APPLIANCES | Dishwasher, Microwave, Range, Stainless Steel Appliance(s) |
| AREA | CHI - Auburn Gresham |
| BASEMENT | Full, Unfinished, Yes |
| CONSTRUCTION | Frame |
| HEAT | Forced Air, Natural Gas |
| INTERIOR | Entrance Foyer, Walk-In Closet(s) |
| LOT | 3093 sq ft |
| LOT DESCRIPTION | Corner Lot |
| LOT DIMENSIONS | 25x125 |
| PARKING | Concrete |
| SEWER | Public Sewer |
| TAXES | 848 |
| WATER | Public |
MORTGAGE CALCULATOR
TOTAL MONTHLY PAYMENT
0
P
I
*Estimate only
| SATELLITE VIEW |
| / | |
We respect your online privacy and will never spam you. By submitting this form with your telephone number
you are consenting for Humderto
Garcia to contact you even if your name is on a Federal or State
"Do not call List".
Listed with Coldwell Banker Realty
The data relating to real estate for sale on this web site comes in part from the Broker ReciprocitySM Program of MRED. All real estate listings are marked with the Broker ReciprocitySM logo or the MRED Broker ReciprocitySM thumbnail logo (a little black house) and detailed information about them includes the name of the listing brokers.
The broker providing these data believes them to be correct, but advises interested parties to confirm them before relying on them in a purchase decision.
Copyright 2026 MRED. All rights reserved.

The broker providing these data believes them to be correct, but advises interested parties to confirm them before relying on them in a purchase decision.
Copyright 2026 MRED. All rights reserved.
This IDX solution is (c) Diverse Solutions 2026.