|
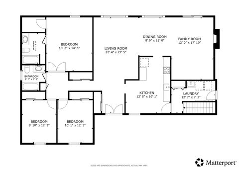
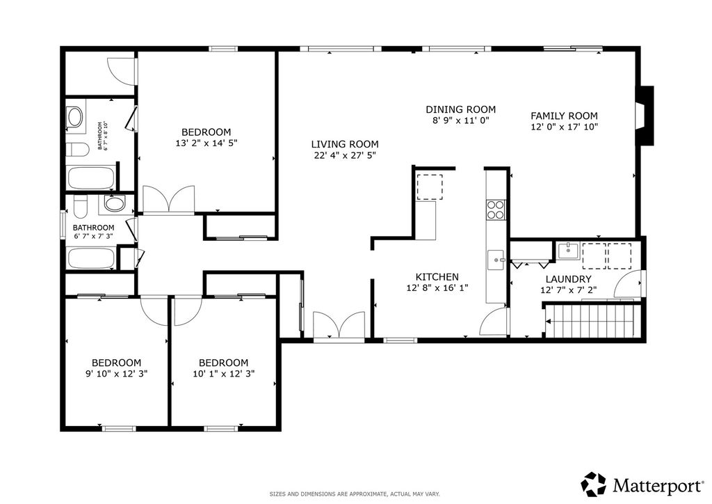
Welcome to this stunning ranch dream home in the highly sought-after Glenbrook South school district. The main level features a beautifully updated kitchen (2022), gleaming hardwood floors throughout, and a highly desirable circular floor plan that enhances both flow and functionality. The inviting family room opens directly to a spacious patio and professionally landscaped backyard-perfect for relaxing, entertaining, pets, or gardening. The primary bathroom was tastefully remodeled in 2024. The finished basement offers exceptional versatility, complete with a bedroom, full bathroom, and a large flex space ideal for guests, a home office, or movie nights. This home has been meticulously maintained and thoughtfully updated, offering true turnkey living with modern comfort and peace of mind. Recent major improvements include a newer roof and windows, updated exterior siding, and fresh interior paint. Additional Extensive Upgrades & Improvements - 2019: Fireplace added; basement carpeting and ceiling tiles replaced; sump pump with battery backup installed; gas garage heater added, 2021: Ejector pump replaced, 2022: Basement window well replaced, 2023: Epoxy garage floor; expanded patio with pavers and underground downspout extension; crawlspace CleanSpace encapsulation with ground gas pipe and rim joist spray foam, 2024: Gutter system upgrades; new shed; egress window drain upgrade, 2025: New garage door and EV charger, additional updates include a newer backyard fence. Altogether, sellers have invested over $100,000 in upgrades. Move-in ready and loaded, this exceptional home offers comfort and long-term value in a prime location.
| DAYS ON MARKET | 0 | LAST UPDATED | 4/10/2026 |
|---|---|---|---|
| YEAR BUILT | 1977 | COMMUNITY | Glenview / Golf |
| GARAGE SPACES | 2.0 | COUNTY | Cook |
| STATUS | Active | PROPERTY TYPE(S) | Single Family |
| School District | Glenbrook South High School |
|---|---|
| Elementary School | Westbrook Elementary School |
| Jr. High School | Attea Middle School |
| High School | Glenbrook South High School |
| ADDITIONAL DETAILS | |
| AIR | Central Air |
|---|---|
| AIR CONDITIONING | Yes |
| APPLIANCES | Dishwasher, Dryer, Microwave, Range, Range Hood, Refrigerator, Stainless Steel Appliance(s), Washer |
| AREA | Glenview / Golf |
| BASEMENT | Partial, Partially Finished, Yes |
| CONSTRUCTION | Brick |
| FIREPLACE | Yes |
| GARAGE | Attached Garage, Yes |
| HEAT | Forced Air, Natural Gas |
| INTERIOR | Open Floorplan, Walk-In Closet(s) |
| LOT | 0 |
| LOT DESCRIPTION | Corner Lot |
| LOT DIMENSIONS | 10474 |
| PARKING | Asphalt, Garage Door Opener, Heated Garage, Attached, Garage |
| SEWER | Public Sewer |
| TAXES | 10486.87 |
| WATER | Public |
MORTGAGE CALCULATOR
TOTAL MONTHLY PAYMENT
0
P
I
*Estimate only
| SATELLITE VIEW |
| / | |
We respect your online privacy and will never spam you. By submitting this form with your telephone number
you are consenting for Humderto
Garcia to contact you even if your name is on a Federal or State
"Do not call List".
Listed with Redfin Corporation
The data relating to real estate for sale on this web site comes in part from the Broker ReciprocitySM Program of MRED. All real estate listings are marked with the Broker ReciprocitySM logo or the MRED Broker ReciprocitySM thumbnail logo (a little black house) and detailed information about them includes the name of the listing brokers.
The broker providing these data believes them to be correct, but advises interested parties to confirm them before relying on them in a purchase decision.
Copyright 2026 MRED. All rights reserved.

The broker providing these data believes them to be correct, but advises interested parties to confirm them before relying on them in a purchase decision.
Copyright 2026 MRED. All rights reserved.
This IDX solution is (c) Diverse Solutions 2026.