|
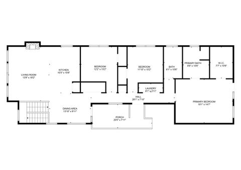
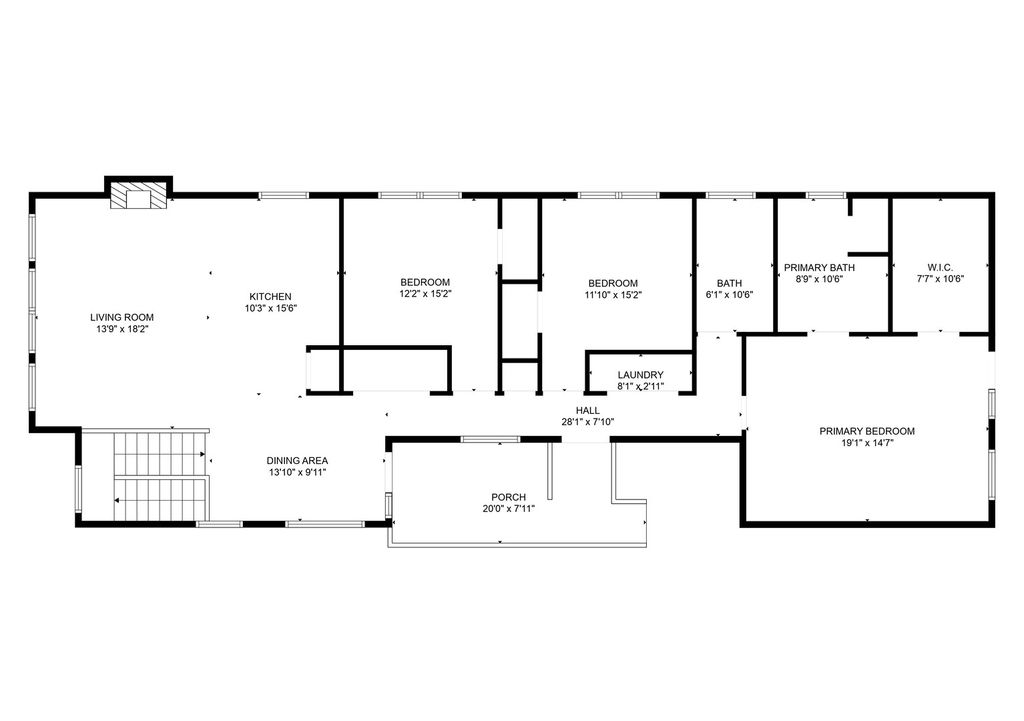
A luxurious penthouse on the top floor of a three-apartment building. Step inside and you'll find everything you desire. Beautiful hardwood floors throughout. Exceptionally bright, spacious rooms. You'll be flooded with natural light, including skylights above to truly warm the space. This unit's fireplace can be used with gas or real wood. The kitchen boasts stainless steel appliances and gorgeous maple cabinets. The oversized granite island provides a great little breakfast bar, with a separate dining area to the right for more entertainment space. Three large, comfortable bedrooms, two bathrooms with a jacuzzi, a washer and dryer, a private balcony, high ceilings, and a two-car garage. All this creates a sense of comfort and luxury. The roof is two years old. The entire building is very well maintained, and the Association has good financial reserves.
| DAYS ON MARKET | 2 | LAST UPDATED | 4/10/2026 |
|---|---|---|---|
| YEAR BUILT | 2006 | COMMUNITY | CHI - Jefferson Park |
| GARAGE SPACES | 2.0 | COUNTY | Cook |
| STATUS | Active | PROPERTY TYPE(S) | Condo/Townhouse/Co-Op |
| School District | Taft High School |
|---|---|
| Elementary School | Garvy Elementary School |
| High School | Taft High School |
| ADDITIONAL DETAILS | |
| AIR | Ceiling Fan(s), Central Air |
|---|---|
| AIR CONDITIONING | Yes |
| AMENITIES | Insurance, Snow Removal, Water |
| APPLIANCES | Dishwasher, Microwave, Range, Refrigerator |
| AREA | CHI - Jefferson Park |
| BASEMENT | None |
| CONSTRUCTION | Brick |
| FIREPLACE | Yes |
| GARAGE | Yes |
| HEAT | Natural Gas |
| HOA DUES | 300 |
| INTERIOR | Cathedral Ceiling(s), Granite Counters, Walk-In Closet(s) |
| LOT | 0 |
| LOT DIMENSIONS | CONDO |
| PARKING | Garage Door Opener, Detached, Garage |
| SEWER | Public Sewer |
| STORIES | 2 |
| TAXES | 5239 |
MORTGAGE CALCULATOR
TOTAL MONTHLY PAYMENT
0
P
I
*Estimate only
| SATELLITE VIEW |
| / | |
We respect your online privacy and will never spam you. By submitting this form with your telephone number
you are consenting for Humderto
Garcia to contact you even if your name is on a Federal or State
"Do not call List".
Listed with arhome realty
The data relating to real estate for sale on this web site comes in part from the Broker ReciprocitySM Program of MRED. All real estate listings are marked with the Broker ReciprocitySM logo or the MRED Broker ReciprocitySM thumbnail logo (a little black house) and detailed information about them includes the name of the listing brokers.
The broker providing these data believes them to be correct, but advises interested parties to confirm them before relying on them in a purchase decision.
Copyright 2026 MRED. All rights reserved.

The broker providing these data believes them to be correct, but advises interested parties to confirm them before relying on them in a purchase decision.
Copyright 2026 MRED. All rights reserved.
This IDX solution is (c) Diverse Solutions 2026.