|
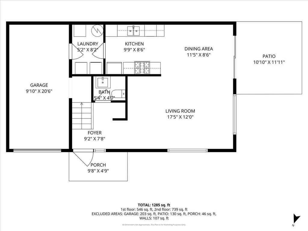
BEAUTIFULLY UPDATED 2 BEDROOM + 2.5 BATH END-UNIT TOWNHOME WITH DEDICATED OFFICE SPACE, LOCATED IN A HIGHLY DESIRABLE AREA OF ORLAND PARK! THIS MOVE-IN READY HOME OFFERS AN UPDATED KITCHEN, GENEROUS LIVING SPACE, AND AN ATTACHED 1-CAR GARAGE. THE OPEN-CONCEPT MAIN LEVEL FEATURES BEAUTIFUL WOOD LAMINATE FLOORING AND AN UPDATED KITCHEN WITH QUARTZ COUNTERTOPS, FLOWING SEAMLESSLY INTO THE LIVING AREA...PERFECT FOR EVERYDAY LIVING AND ENTERTAINING. ENJOY EASY ACCESS TO YOUR PRIVATE WALK-OUT PATIO, IDEAL FOR RELAXING OR OUTDOOR GRILLING. UPSTAIRS, YOU'LL FIND TWO SPACIOUS BEDROOMS, INCLUDING A PRIMARY SUITE WITH A SEPARATE VANITY AND A FLEXIBLE OFFICE SPACE THAT CAN EASILY BE CONVERTED INTO A THIRD BEDROOM. IF YOU'RE LOOKING FOR LOW-MAINTENANCE LIVING WITH LOW HOA DUES, THIS HOME CHECKS EVERY BOX! ADDITIONAL FEATURES INCLUDE A NEW ROOF, GUTTERS, AND SIDING (2025), MAIN FLOOR WINDOWS (2024), FURNACE (2014), PRIVATE PATIO, ATTACHED 1-CAR GARAGE, AND A 13-MONTH HOME WARRANTY INCLUDED.
| DAYS ON MARKET | 26 | LAST UPDATED | 4/19/2026 |
|---|---|---|---|
| TRACT | Heritage | YEAR BUILT | 1984 |
| COMMUNITY | Orland Park | GARAGE SPACES | 1.0 |
| COUNTY | Cook | STATUS | Conditional |
| PROPERTY TYPE(S) | Condo/Townhouse/Co-Op |
| ADDITIONAL DETAILS | |
| AIR | Ceiling Fan(s), Central Air |
|---|---|
| AIR CONDITIONING | Yes |
| AMENITIES | Insurance, Snow Removal |
| APPLIANCES | Dryer, Range, Refrigerator, Washer |
| AREA | Orland Park |
| BASEMENT | None |
| CONSTRUCTION | Aluminum Siding, Brick |
| GARAGE | Attached Garage, Yes |
| HEAT | Forced Air, Natural Gas |
| HOA DUES | 195 |
| INTERIOR | Storage |
| LOT | 0 |
| LOT DIMENSIONS | Common |
| PARKING | Attached, Garage |
| SEWER | Public Sewer |
| STORIES | 2 |
| SUBDIVISION | Heritage |
| TAXES | 4850 |
| WATER | Public |
MORTGAGE CALCULATOR
TOTAL MONTHLY PAYMENT
0
P
I
*Estimate only
| SATELLITE VIEW |
| / | |
We respect your online privacy and will never spam you. By submitting this form with your telephone number
you are consenting for Humderto
Garcia to contact you even if your name is on a Federal or State
"Do not call List".
Listed with Baird & Warner
The data relating to real estate for sale on this web site comes in part from the Broker ReciprocitySM Program of MRED. All real estate listings are marked with the Broker ReciprocitySM logo or the MRED Broker ReciprocitySM thumbnail logo (a little black house) and detailed information about them includes the name of the listing brokers.
The broker providing these data believes them to be correct, but advises interested parties to confirm them before relying on them in a purchase decision.
Copyright 2026 MRED. All rights reserved.

The broker providing these data believes them to be correct, but advises interested parties to confirm them before relying on them in a purchase decision.
Copyright 2026 MRED. All rights reserved.
This IDX solution is (c) Diverse Solutions 2026.