|
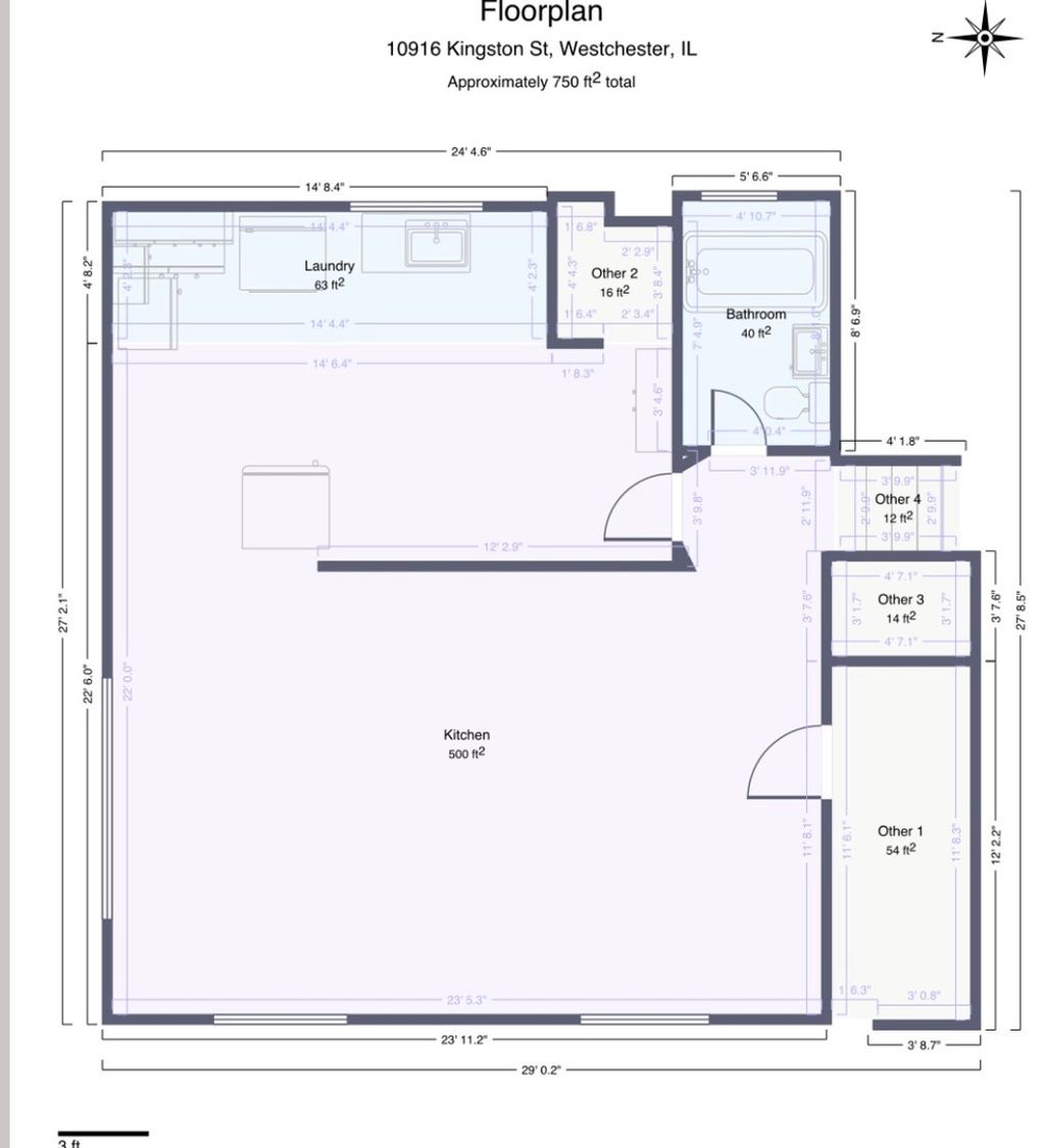
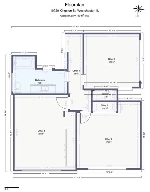
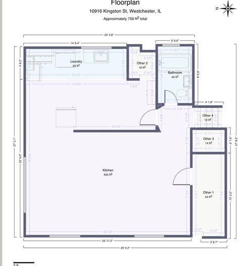
Welcome to this all-brick, one-owner home offering over 2,000 sq. ft. of living space, a finished basement, and the kind of updates that give buyers real confidence. This home features 3 bedrooms, 2.5 bathrooms, and has been thoughtfully maintained with major improvements already completed: furnace (2023), A/C (2022), water heater (2026), updated electrical panel (2022), sump pump and valve (2022), new dishwasher with plumbing (2026), and updated laundry/utility piping (2026). A new fire alarm and CO detectors have also been installed for added peace of mind. Inside, you'll find refinished red oak hardwood floors throughout, a custom red oak staircase banister, and a freshly painted first floor that feels clean and move-in ready. The home also offers excellent storage, including a crawlspace accessible from the basement closet/pantry area. As an estate sale, there are minor cosmetic opportunities, making this a perfect chance to personalize while building equity-without worrying about major systems. Located in a quiet, well-kept neighborhood with strong community appeal, you're just steps from Mayfair Park, offering playgrounds, soccer fields, and baseball fields. Enjoy easy access to Interstate 290, and a short drive to both O'Hare International Airport and Midway International Airport, plus premier shopping at Oakbrook Center and Yorktown Center. Homes with this level of updates, space, and location don't sit-schedule your private showing today before it's gone. Sold AS IS.
| DAYS ON MARKET | 6 | LAST UPDATED | 4/13/2026 |
|---|---|---|---|
| YEAR BUILT | 1969 | COMMUNITY | Westchester |
| GARAGE SPACES | 2.0 | COUNTY | Cook |
| STATUS | Active | PROPERTY TYPE(S) | Single Family |
| ADDITIONAL DETAILS | |
| AIR | Central Air |
|---|---|
| AIR CONDITIONING | Yes |
| APPLIANCES | Dishwasher, Double Oven, Microwave, Range, Refrigerator |
| AREA | Westchester |
| BASEMENT | Finished, Partial, Yes |
| CONSTRUCTION | Other |
| GARAGE | Attached Garage, Yes |
| HEAT | Natural Gas |
| LOT | 6970 sq ft |
| LOT DIMENSIONS | 62x112 |
| PARKING | Concrete, Attached, Driveway, Garage |
| SEWER | Public Sewer |
| TAXES | 8407 |
MORTGAGE CALCULATOR
TOTAL MONTHLY PAYMENT
0
P
I
*Estimate only
| SATELLITE VIEW |
| / | |
We respect your online privacy and will never spam you. By submitting this form with your telephone number
you are consenting for Humderto
Garcia to contact you even if your name is on a Federal or State
"Do not call List".
Listed with Keller Williams Preferred Rlty
The data relating to real estate for sale on this web site comes in part from the Broker ReciprocitySM Program of MRED. All real estate listings are marked with the Broker ReciprocitySM logo or the MRED Broker ReciprocitySM thumbnail logo (a little black house) and detailed information about them includes the name of the listing brokers.
The broker providing these data believes them to be correct, but advises interested parties to confirm them before relying on them in a purchase decision.
Copyright 2026 MRED. All rights reserved.

The broker providing these data believes them to be correct, but advises interested parties to confirm them before relying on them in a purchase decision.
Copyright 2026 MRED. All rights reserved.
This IDX solution is (c) Diverse Solutions 2026.