|
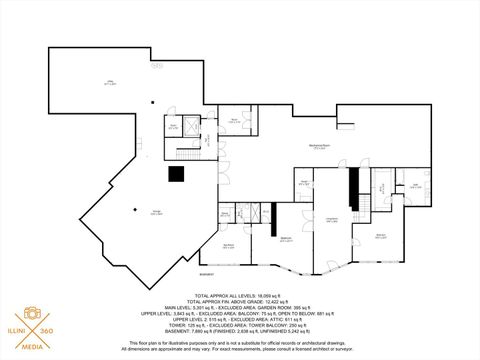
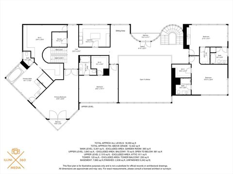
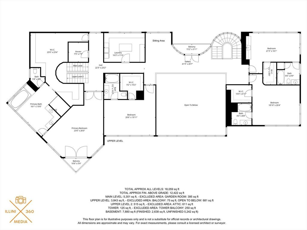
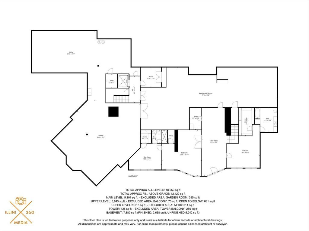
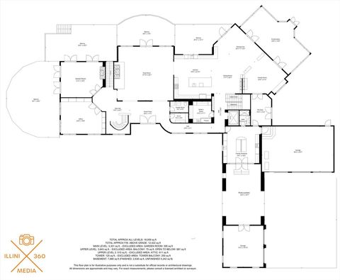
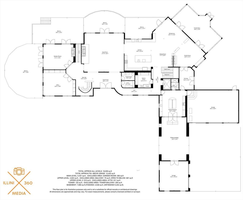
Introducing The Hidden River Estate, a generational estate of timeless craftsmanship and enduring design. Inspired by classic English country manors and enhanced by Frank Lloyd Wright architectural principles, this extraordinary residence rests on just under 26 private acres north of Mahomet, with frontage along the Sangamon River and adjacency to the Heron View Forest Preserve. Constructed of quarry stone, limestone, slate, and copper, every material was chosen for permanence and integrity. Inside, natural finishes of marble, granite, Jerusalem stone, and solid hardwoods pair with intricate millwork and custom-built furnishings. The home spans over 18,000 square feet across multiple levels, each connected by an elevator and designed for both elegance and function. The main level centers around a soaring Great Room framed by stone and light, flowing into the chef's kitchen equipped with SubZero, Thermador, and Miele appliances. A handcrafted English conservatory, imported from England, serves as a year-round retreat with panoramic woodland views. Each bedroom features a private en suite bath, while the primary suite offers dual walk-in closets, a spa-inspired bath, and balcony access. The tower observatory, accessed by 54 steps, reveals 360 treetop and river views. Every element of the property was engineered to commercial-grade standards, including redundant systems, geothermal HVAC, multiple wells, lift pumps, a full-house generator, and professional-grade service access throughout. The lower level includes a fitness area, sauna, with abundant storage and flex space. Outdoor amenities include five-car garage capacity, a slate roof, and multiple balconies overlooking manicured lawns and mature trees. Hidden River represents the rare combination of enduring construction, thoughtful design, and natural beauty, a timeless, generational home built to last for centuries.
| DAYS ON MARKET | 7 | LAST UPDATED | 4/13/2026 |
|---|---|---|---|
| YEAR BUILT | 2001 | COMMUNITY | Western Champaign County / Piatt & McClean Counties |
| GARAGE SPACES | 5.0 | COUNTY | Champaign |
| STATUS | Active | PROPERTY TYPE(S) | Single Family |
| School District | Mahomet-Seymour High School |
|---|---|
| Elementary School | Mahomet Elementary School |
| Jr. High School | Mahomet Junior High School |
| High School | Mahomet-Seymour High School |
| ADDITIONAL DETAILS | |
| AIR | Central Air, Geothermal, Zoned |
|---|---|
| AIR CONDITIONING | Yes |
| APPLIANCES | Double Oven, Microwave, Range, Range Hood, Trash Compactor, Water Softener |
| AREA | Western Champaign County / Piatt & McClean Counties |
| BASEMENT | Concrete, Full, Partially Finished, Storage Space, Yes |
| CONSTRUCTION | Stone |
| EXTERIOR | Balcony |
| FIREPLACE | Yes |
| GARAGE | Attached Garage, Yes |
| HEAT | Electric, Geothermal, Heat Pump, Zoned |
| INTERIOR | Beamed Ceilings, Cathedral Ceiling(s), Coffered Ceiling(s), Elevator, Entrance Foyer, In-Law Floorplan, Open Floorplan, Sauna, Vaulted Ceiling(s), Walk-In Closet(s) |
| LOT | 25.08 acre(s) |
| LOT DESCRIPTION | Garden, Irregular Lot, Landscaped, Wooded |
| LOT DIMENSIONS | 253x86x324x680x135x53x20x52313x5231 |
| PARKING | Asphalt, Garage, Attached |
| SEWER | Septic Tank |
| STYLE | English |
| TAXES | 36516 |
| VIEW | Yes |
| VIEW DESCRIPTION | Water |
| WATER | Well |
| WATERFRONT | Yes |
| WATERFRONT DESCRIPTION | River Front, Waterfront |
MORTGAGE CALCULATOR
TOTAL MONTHLY PAYMENT
0
P
I
*Estimate only
| SATELLITE VIEW |
| / | |
We respect your online privacy and will never spam you. By submitting this form with your telephone number
you are consenting for Humderto
Garcia to contact you even if your name is on a Federal or State
"Do not call List".
Listed with eXp Realty-Mahomet
The data relating to real estate for sale on this web site comes in part from the Broker ReciprocitySM Program of MRED. All real estate listings are marked with the Broker ReciprocitySM logo or the MRED Broker ReciprocitySM thumbnail logo (a little black house) and detailed information about them includes the name of the listing brokers.
The broker providing these data believes them to be correct, but advises interested parties to confirm them before relying on them in a purchase decision.
Copyright 2026 MRED. All rights reserved.

The broker providing these data believes them to be correct, but advises interested parties to confirm them before relying on them in a purchase decision.
Copyright 2026 MRED. All rights reserved.
This IDX solution is (c) Diverse Solutions 2026.