|
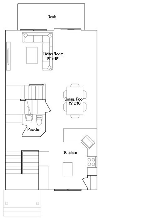
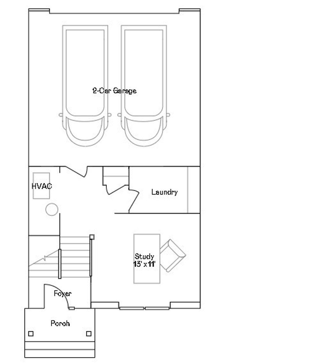
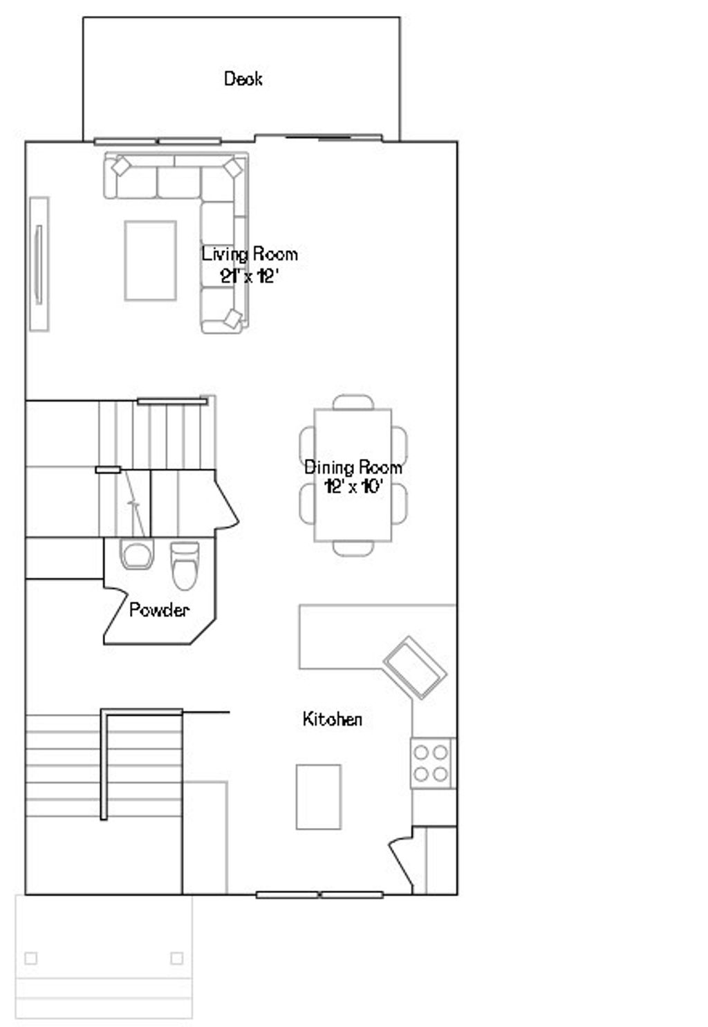
READY FOR MAY DELIVERY! HOMESITE #1404 Welcome to the Chatham - a beautifully designed, three-story urban townhome where premium design and everyday ease converge harmoniously. This home offers three spacious bedrooms, two full bathrooms, and a convenient half bath. Luxury vinyl plank flooring spans the main level adding a warm and welcoming atmosphere throughout. The designer kitchen is the soul of the home, thoughtfully appointed with 42" cabinetry, elegant quartz countertops, a built-in pantry, and a jaw-dropping kitchen island. Two additional bedrooms, and a full bathroom complete the floor. Located on the lower level, the flex room offers endless possibilities and can be customized to suit your unique needs -limited only by your imagination. *Photos are not this actual home* On the upper level, the inviting Owner's Suite boasts a spacious walk-in closet and a private en-suite bath featuring dual white undermount sinks and a sleek walk-in shower. Two additional bedrooms and a full bath complete the floor. Located on the lower level, the flex room offers endless possibilities and can be customized to suit your unique needs -limited only by your imagination.
| DAYS ON MARKET | 8 | LAST UPDATED | 4/14/2026 |
|---|---|---|---|
| TRACT | Harvest View | YEAR BUILT | 2025 |
| COMMUNITY | Dundee / East Dundee / Sleepy Hollow / West Dundee | GARAGE SPACES | 2.0 |
| COUNTY | Kane | STATUS | Active |
| PROPERTY TYPE(S) | Condo/Townhouse/Co-Op |
| School District | H D Jacobs High School |
|---|---|
| Elementary School | Sleepy Hollow Elementary School |
| Jr. High School | Dundee Middle School |
| High School | H D Jacobs High School |
| ADDITIONAL DETAILS | |
| AIR | Central Air |
|---|---|
| AIR CONDITIONING | Yes |
| AMENITIES | Insurance, Snow Removal |
| APPLIANCES | Dishwasher, Disposal, Microwave, Range, Stainless Steel Appliance(s) |
| AREA | Dundee / East Dundee / Sleepy Hollow / West Dundee |
| BASEMENT | None |
| CONSTRUCTION | Concrete, Other, Stone |
| GARAGE | Attached Garage, Yes |
| HEAT | Forced Air, Natural Gas |
| HOA DUES | 249 |
| LOT | 0 |
| LOT DIMENSIONS | 0 |
| PARKING | Asphalt, Garage Door Opener, Attached, Garage |
| SEWER | Public Sewer |
| STORIES | 3 |
| SUBDIVISION | Harvest View |
| WATER | Public |
MORTGAGE CALCULATOR
TOTAL MONTHLY PAYMENT
0
P
I
*Estimate only
| SATELLITE VIEW |
| / | |
We respect your online privacy and will never spam you. By submitting this form with your telephone number
you are consenting for Humderto
Garcia to contact you even if your name is on a Federal or State
"Do not call List".
Listed with HomeSmart Connect LLC
The data relating to real estate for sale on this web site comes in part from the Broker ReciprocitySM Program of MRED. All real estate listings are marked with the Broker ReciprocitySM logo or the MRED Broker ReciprocitySM thumbnail logo (a little black house) and detailed information about them includes the name of the listing brokers.
The broker providing these data believes them to be correct, but advises interested parties to confirm them before relying on them in a purchase decision.
Copyright 2026 MRED. All rights reserved.

The broker providing these data believes them to be correct, but advises interested parties to confirm them before relying on them in a purchase decision.
Copyright 2026 MRED. All rights reserved.
This IDX solution is (c) Diverse Solutions 2026.