|
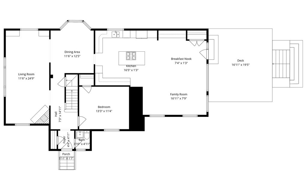
Incredible opportunity to own this beautifully maintained 4-bedroom brick Cape Cod on a 10,000sf+ corner lot in historic Old Norwood Park. Sunlight pours into the spacious living, dining & family rooms, highlighting large windows, charming built-ins, and a cozy fireplace that create a warm and inviting atmosphere. The chef's kitchen is truly the heart of the home, featuring a massive island, wall-to-wall cabinetry, granite countertops, a dry bar, and an eat-in dining area with direct access to the outdoor deck. The adjoining family room is perfect for entertaining or relaxing nights in. The main level also includes a convenient bedroom and guest bathroom. A classic staircase leads to the upper level, offering three generously sized bedrooms, including a serene primary suite with a large walk-in closet and spa-like bath. All bedrooms can comfortably accommodate king-size beds. This level is complete with a second full bathroom and a dedicated laundry room. The partially finished basement provides a cozy retreat with a recreation room, a fireplace, dry bar, and abundant storage space. It also has one of the two zoned furnaces and a backup sewer sump pump to assure the basement stays nice and dry. Step outside to a beautiful deck surrounded by mature trees, lush greenery and in-ground irrigation system ideal for enjoying warm weather and outdoor gatherings. Unbeatable location just one block from Norwood Park, charming shops, and restaurants along Northwest Highway. Only 1.5 blocks to the Metra, with easy access to the expressway and just a 13 minute drive to O'Hare. Located in sought-after Norwood Park Elementary and Taft High School districts.
| DAYS ON MARKET | 1 | LAST UPDATED | 4/14/2026 |
|---|---|---|---|
| YEAR BUILT | 1942 | COMMUNITY | CHI - Norwood Park |
| GARAGE SPACES | 2.0 | COUNTY | Cook |
| STATUS | Active | PROPERTY TYPE(S) | Single Family |
| ADDITIONAL DETAILS | |
| AIR | Central Air |
|---|---|
| AIR CONDITIONING | Yes |
| APPLIANCES | Dishwasher, Dryer, Microwave, Range, Refrigerator, Stainless Steel Appliance(s), Washer |
| AREA | CHI - Norwood Park |
| BASEMENT | Full, Partially Finished, Yes |
| CONSTRUCTION | Brick |
| GARAGE | Yes |
| HEAT | Forced Air, Natural Gas |
| INTERIOR | Walk-In Closet(s) |
| LOT | 0 |
| LOT DIMENSIONS | 50x200 |
| PARKING | Detached, Garage |
| SEWER | Public Sewer |
| TAXES | 10059.7 |
| WATER | Public |
MORTGAGE CALCULATOR
TOTAL MONTHLY PAYMENT
0
P
I
*Estimate only
| SATELLITE VIEW |
| / | |
We respect your online privacy and will never spam you. By submitting this form with your telephone number
you are consenting for Humderto
Garcia to contact you even if your name is on a Federal or State
"Do not call List".
Listed with Compass
The data relating to real estate for sale on this web site comes in part from the Broker ReciprocitySM Program of MRED. All real estate listings are marked with the Broker ReciprocitySM logo or the MRED Broker ReciprocitySM thumbnail logo (a little black house) and detailed information about them includes the name of the listing brokers.
The broker providing these data believes them to be correct, but advises interested parties to confirm them before relying on them in a purchase decision.
Copyright 2026 MRED. All rights reserved.

The broker providing these data believes them to be correct, but advises interested parties to confirm them before relying on them in a purchase decision.
Copyright 2026 MRED. All rights reserved.
This IDX solution is (c) Diverse Solutions 2026.