|
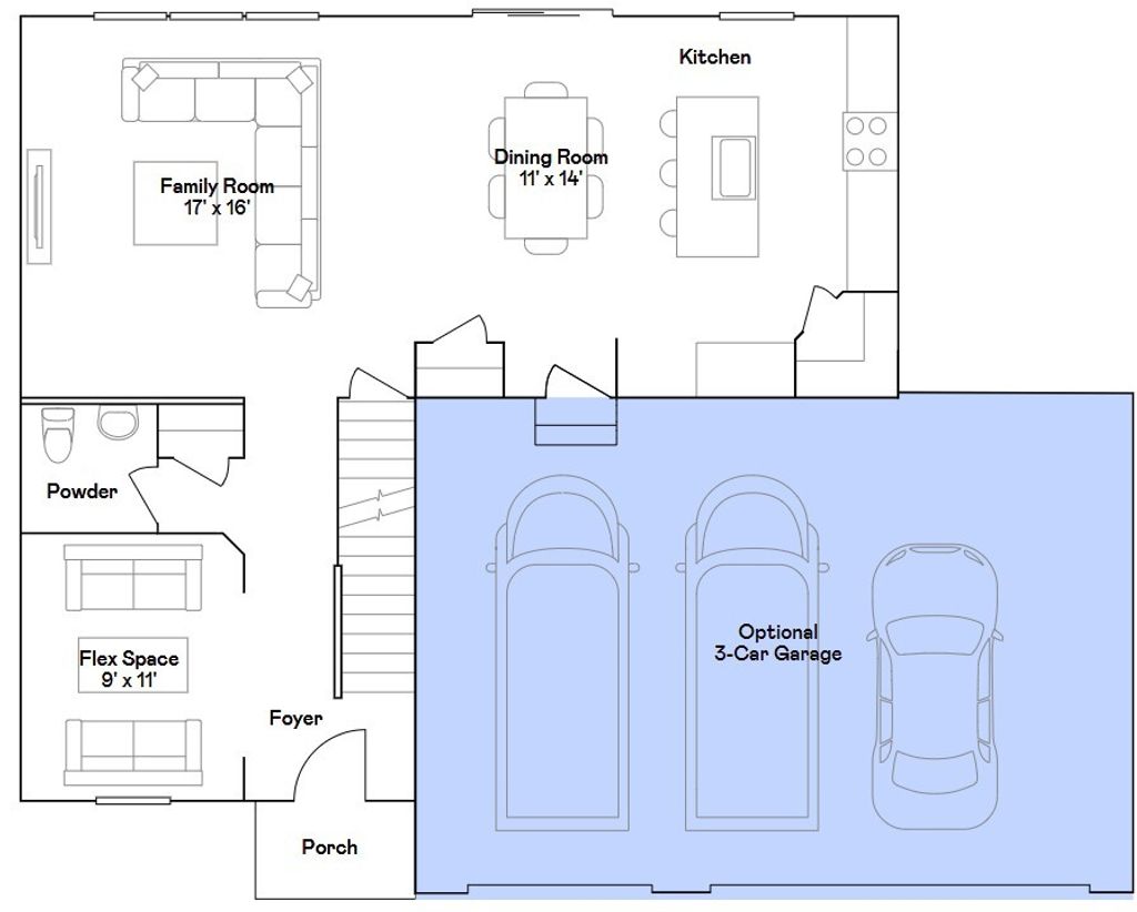
#0265. Unveil the Starling, an expertly constructed home where exceptional design blends effortlessly with everyday comfort. This airy design offers four bedrooms, two bathrooms, a powder room, and a versatile flex room, perfect for adapting to your lifestyle. Luxury vinyl plank flooring flows throughout the main living space, creating a warm and inviting atmosphere in the open-concept family room, dining area, and kitchen. The chef-inspired kitchen features stainless steel appliances, sleek 42" cabinetry, elegant quartz countertops, and a large island that serves as both a focal point and a functional workspace. A built-in pantry adds extra convenience and storage. The owner's suite, situated on the upper level, is an oasis with a generous walk-in closet and a spa-like en-suite bathroom. The bathroom includes double sinks and a deluxe shower, creating a luxurious space for relaxation. Three additional bedrooms share a full bathroom, and the convenience of a second-floor laundry room makes everyday tasks easier. The first floor features a flexible space that can be customized to fit your needs-whether it's a home office, dining room, or entertainment area, the possibilities are endless. Additionally, a standard three-car garage provides ample parking and storage (pic for reference ONLY). There is currently no active SSA at this community. *Photos are not this actual home* At the heart of a warm, welcoming community, this thoughtfully designed neighborhood offers the perfect blend of modern living and historic charm. Surrounded by peaceful streets and open green spaces, residents can enjoy walkable pathways, cozy cul-de-sacs, and the comfort of a tight-knit atmosphere. Just minutes away, downtown Woodstock invites you to explore its vibrant mix of antique shops, local dining favorites, and year-round community events. Steeped in rich history and hometown pride, the area buzzes with activity - from seasonal farmers' markets and summer concerts in the square to art fairs and holiday parades. Nature lovers and active families will appreciate the abundance of nearby parks and recreation centers, offering everything from playgrounds to walking trails. Whether you're grabbing coffee in a charming local cafe or enjoying a weekend stroll through beautiful green spaces, Woodstock offers something for everyone - with a lifestyle that feels both timeless and modern.
| DAYS ON MARKET | 3 | LAST UPDATED | 4/15/2026 |
|---|---|---|---|
| TRACT | Riverwoods | YEAR BUILT | 2026 |
| COMMUNITY | Bull Valley / Greenwood / Woodstock | GARAGE SPACES | 3.0 |
| COUNTY | McHenry | STATUS | Conditional |
| PROPERTY TYPE(S) | Single Family |
| School District | Woodstock High School |
|---|---|
| Elementary School | Prairiewood Elementary School |
| Jr. High School | Creekside Middle School |
| High School | Woodstock High School |
| ADDITIONAL DETAILS | |
| AIR | Central Air |
|---|---|
| AIR CONDITIONING | Yes |
| APPLIANCES | Dishwasher, Disposal, Microwave, Range, Stainless Steel Appliance(s) |
| AREA | Bull Valley / Greenwood / Woodstock |
| BASEMENT | Full, Unfinished, Yes |
| CONSTRUCTION | Brick, Vinyl Siding |
| GARAGE | Attached Garage, Yes |
| HEAT | Forced Air, Natural Gas |
| HOA DUES | 62 |
| LOT | 0 |
| LOT DIMENSIONS | 8000 |
| PARKING | Asphalt, Garage Door Opener, Attached, Garage |
| SEWER | Public Sewer |
| SUBDIVISION | Riverwoods |
| WATER | Public |
MORTGAGE CALCULATOR
TOTAL MONTHLY PAYMENT
0
P
I
*Estimate only
| SATELLITE VIEW |
| / | |
We respect your online privacy and will never spam you. By submitting this form with your telephone number
you are consenting for Humderto
Garcia to contact you even if your name is on a Federal or State
"Do not call List".
Listed with HomeSmart Connect LLC
The data relating to real estate for sale on this web site comes in part from the Broker ReciprocitySM Program of MRED. All real estate listings are marked with the Broker ReciprocitySM logo or the MRED Broker ReciprocitySM thumbnail logo (a little black house) and detailed information about them includes the name of the listing brokers.
The broker providing these data believes them to be correct, but advises interested parties to confirm them before relying on them in a purchase decision.
Copyright 2026 MRED. All rights reserved.

The broker providing these data believes them to be correct, but advises interested parties to confirm them before relying on them in a purchase decision.
Copyright 2026 MRED. All rights reserved.
This IDX solution is (c) Diverse Solutions 2026.