|
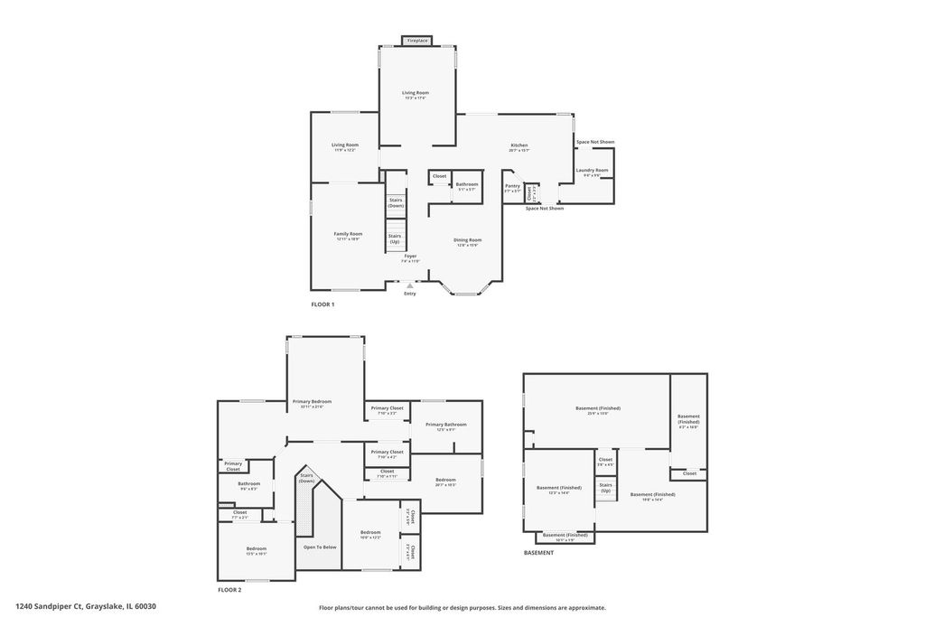
Welcome home to 1240 Sandpiper Ct, a beautifully maintained home tucked away on a quiet cul-de-sac in Grayslake, offering over 4,000 square feet of finished living space designed for both everyday comfort and effortless entertaining. The main level showcases a bright, inviting layout with expansive living areas and a seamless flow throughout. The kitchen opens to the dining and family spaces, creating the perfect setting for gatherings, hosting, and daily living. Upstairs, you'll find generously sized bedrooms, including a spacious primary suite complete with ample closet space and a private retreat feel. The finished living space continues to impress, offering flexibility for recreation, work from home needs, or additional entertaining areas. Step outside to your private backyard, ideal for relaxing evenings, summer entertaining, or simply enjoying the peaceful surroundings. The cul-de-sac location provides added privacy and minimal traffic, enhancing the home's quiet setting. Conveniently located near parks, schools, shopping, and dining, this home offers the perfect balance of space, comfort, and location. A rare opportunity in a highly desirable Grayslake neighborhood. AC (2018), Furnace (2013)
| DAYS ON MARKET | 2 | LAST UPDATED | 4/15/2026 |
|---|---|---|---|
| TRACT | Hunters Ridge | YEAR BUILT | 1994 |
| COMMUNITY | Gages Lake / Grayslake / Hainesville / Third Lake / Wildwood | GARAGE SPACES | 2.0 |
| COUNTY | Lake | STATUS | Active |
| PROPERTY TYPE(S) | Single Family |
| School District | Grayslake Central High School |
|---|---|
| Elementary School | Woodland Elementary School |
| Jr. High School | Woodland Middle School |
| High School | Grayslake Central High School |
| ADDITIONAL DETAILS | |
| AIR | Central Air |
|---|---|
| AIR CONDITIONING | Yes |
| AREA | Gages Lake / Grayslake / Hainesville / Third Lake / Wildwood |
| BASEMENT | Crawl Space, Finished, Full, Storage Space, Yes |
| CONSTRUCTION | Vinyl Siding |
| FIREPLACE | Yes |
| GARAGE | Attached Garage, Yes |
| HEAT | Forced Air, Natural Gas |
| HOA DUES | 200 |
| INTERIOR | Built-in Features, Open Floorplan, Walk-In Closet(s) |
| LOT | 9148 sq ft |
| LOT DESCRIPTION | Cul-de-sac |
| LOT DIMENSIONS | 96X106X79X23X17X54 |
| PARKING | Asphalt, Garage Door Opener, Attached, Garage |
| SEWER | Public Sewer |
| STYLE | Colonial |
| SUBDIVISION | Hunters Ridge |
| TAXES | 3 |
| WATER | Public |
MORTGAGE CALCULATOR
TOTAL MONTHLY PAYMENT
0
P
I
*Estimate only
| SATELLITE VIEW |
| / | |
We respect your online privacy and will never spam you. By submitting this form with your telephone number
you are consenting for Humderto
Garcia to contact you even if your name is on a Federal or State
"Do not call List".
Listed with @properties Christies International Real Estate
The data relating to real estate for sale on this web site comes in part from the Broker ReciprocitySM Program of MRED. All real estate listings are marked with the Broker ReciprocitySM logo or the MRED Broker ReciprocitySM thumbnail logo (a little black house) and detailed information about them includes the name of the listing brokers.
The broker providing these data believes them to be correct, but advises interested parties to confirm them before relying on them in a purchase decision.
Copyright 2026 MRED. All rights reserved.

The broker providing these data believes them to be correct, but advises interested parties to confirm them before relying on them in a purchase decision.
Copyright 2026 MRED. All rights reserved.
This IDX solution is (c) Diverse Solutions 2026.