|
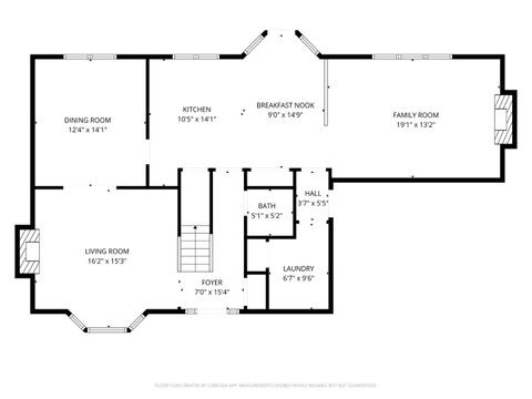
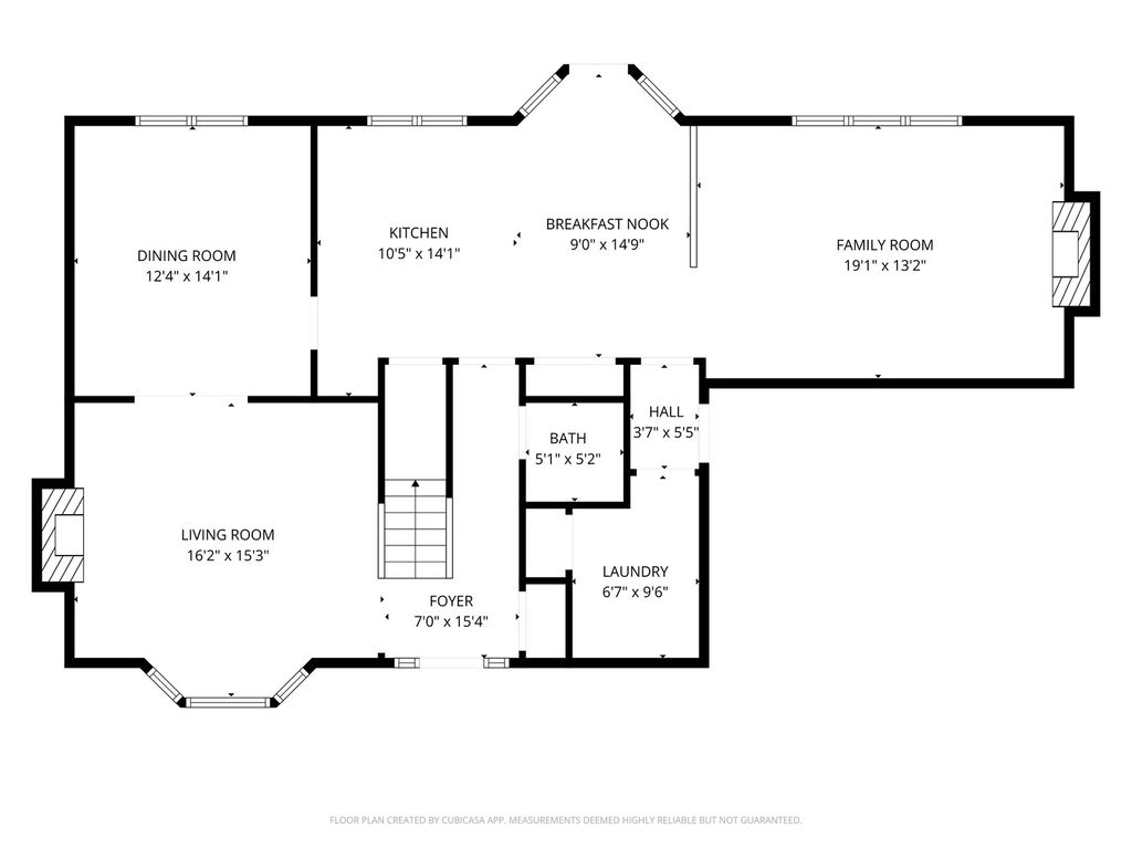
Highest and Best due by Sunday 4/26 10am. Move-in ready and beautifully maintained, this spacious 4-bedroom home offers modern updates and a functional layout in a desirable neighborhood. The main level features a bright kitchen with granite countertops, stainless steel appliances, hardwood floors, and a vaulted family room with skylights and a fireplace. Upstairs offers four generously sized bedrooms, including a primary suite with a jetted tub, separate shower, and a dedicated vanity area. The finished basement includes a newly added home office, along with space for a recreation room or playroom, plus extra storage and a workshop. Enjoy outdoor living with a fully fenced yard, mature landscaping, and a large deck-perfect for entertaining. Major updates include furnace & A/C (2019), roof and siding (2010), skylights (2020), carpet (2025), fridge (2023),microwave (2025),water heater (2024), and driveway (2023). Additional features include wiring for EV charger and upgraded window treatments on the first floor. Conveniently located near Costco, Lowe's, grocery stores, and within walking distance to Coral Cove Water Park.
| DAYS ON MARKET | 5 | LAST UPDATED | 4/27/2026 |
|---|---|---|---|
| YEAR BUILT | 1996 | COMMUNITY | Carol Stream |
| GARAGE SPACES | 2.0 | COUNTY | DuPage |
| STATUS | Conditional | PROPERTY TYPE(S) | Single Family |
| School District | Glenbard North High School |
|---|---|
| Elementary School | Heritage Lakes Elementary School |
| Jr. High School | Jay Stream Middle School |
| High School | Glenbard North High School |
| ADDITIONAL DETAILS | |
| AIR | Central Air |
|---|---|
| AIR CONDITIONING | Yes |
| APPLIANCES | Dishwasher, Disposal, Double Oven, Dryer, Microwave, Refrigerator, Stainless Steel Appliance(s), Washer |
| AREA | Carol Stream |
| BASEMENT | Crawl Space, Finished, Full, Sump Pump, Yes |
| CONSTRUCTION | Brick, Vinyl Siding |
| GARAGE | Attached Garage, Yes |
| HEAT | Natural Gas |
| INTERIOR | Cathedral Ceiling(s) |
| LOT | 10019 sq ft |
| LOT DIMENSIONS | 75 X 135 |
| PARKING | Asphalt, Attached, Garage |
| SEWER | Public Sewer |
| TAXES | 12890.18 |
| WATER | Public |
MORTGAGE CALCULATOR
TOTAL MONTHLY PAYMENT
0
P
I
*Estimate only
| SATELLITE VIEW |
| / | |
We respect your online privacy and will never spam you. By submitting this form with your telephone number
you are consenting for Humderto
Garcia to contact you even if your name is on a Federal or State
"Do not call List".
Listed with Charles Rutenberg Realty of IL
The data relating to real estate for sale on this web site comes in part from the Broker ReciprocitySM Program of MRED. All real estate listings are marked with the Broker ReciprocitySM logo or the MRED Broker ReciprocitySM thumbnail logo (a little black house) and detailed information about them includes the name of the listing brokers.
The broker providing these data believes them to be correct, but advises interested parties to confirm them before relying on them in a purchase decision.
Copyright 2026 MRED. All rights reserved.

The broker providing these data believes them to be correct, but advises interested parties to confirm them before relying on them in a purchase decision.
Copyright 2026 MRED. All rights reserved.
This IDX solution is (c) Diverse Solutions 2026.