|
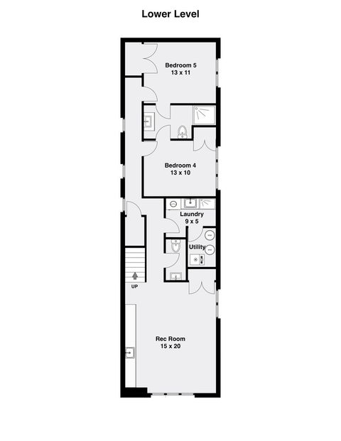
Distinguished 5 bedroom, 4.2 bath new construction single-family home in the heart of Graceland West. One-of-a-kind luxury home with stunning limestone and brick exterior, fully enclosed yard, multiple outdoor entertaining spaces including roof top deck, and detached 2-car garage with second roof deck. Step inside to a welcoming living/dining area highlighted by oversized front windows and designer wallpaper. Entertainer's kitchen is equipped with Wolf/Sub-Zero appliances, custom flat panel cabinetry, built-in wine cooler, large island with built-in breakfast bar, and walk-in pantry. Attached family room features a statement fireplace with large geometric floor-to-ceiling tile accented by custom built-in shelving and access to the rear patio and garage roof deck. Refined primary suite with spa-quality bath featuring steam shower, freestanding tub, heated flooring, and dual sinks, and two closets with custom organizers. Two additional bedrooms, one with ensuite bath with tub, one with shared ensuite/hall bath with tub, and laundry complete the second level. Third level access to roof top deck includes a wet bar. Finished lower level features a recreation room with wet bar, second laundry room with dog washing station + farmhouse sink, two bedrooms, half bath, full bath with shower, storage, mechanicals, and radiant heated flooring. Tons of thoughtful extras including security system with multiple cameras, wiring for speakers throughout the home and on the back patio, accent wallpaper, custom closets, and much more! Fantastic neighborhood close to the lake, public transportation, parks, groceries, and all your favorite restaurants, shopping, and entertainment. Video is from the home next door which has comparable floor plan and finishes.
| DAYS ON MARKET | 1 | LAST UPDATED | 4/21/2026 |
|---|---|---|---|
| YEAR BUILT | 2025 | COMMUNITY | CHI - Lake View |
| GARAGE SPACES | 2.0 | COUNTY | Cook |
| STATUS | Active | PROPERTY TYPE(S) | Single Family |
| Elementary School | Ravenswood Elementary School |
|---|
| ADDITIONAL DETAILS | |
| AIR | Central Air |
|---|---|
| AIR CONDITIONING | Yes |
| APPLIANCES | Dishwasher, Disposal, Dryer, Humidifier, Microwave, Range, Range Hood, Refrigerator, Washer, Wine Refrigerator |
| AREA | CHI - Lake View |
| BASEMENT | Finished, Full, Sump Pump, Yes |
| CONSTRUCTION | Brick |
| FIREPLACE | Yes |
| GARAGE | Yes |
| HEAT | Forced Air, Natural Gas, Radiant, Radiant Floor |
| INTERIOR | Built-in Features, High Ceilings, Walk-In Closet(s), Wet Bar |
| LOT | 0 |
| LOT DIMENSIONS | 25 x 125 |
| PARKING | Garage Door Opener, Detached, Garage |
| SEWER | Public Sewer |
| WATER | Public |
MORTGAGE CALCULATOR
TOTAL MONTHLY PAYMENT
0
P
I
*Estimate only
| SATELLITE VIEW |
| / | |
We respect your online privacy and will never spam you. By submitting this form with your telephone number
you are consenting for Humderto
Garcia to contact you even if your name is on a Federal or State
"Do not call List".
Listed with Jameson Sotheby's Intl Realty
The data relating to real estate for sale on this web site comes in part from the Broker ReciprocitySM Program of MRED. All real estate listings are marked with the Broker ReciprocitySM logo or the MRED Broker ReciprocitySM thumbnail logo (a little black house) and detailed information about them includes the name of the listing brokers.
The broker providing these data believes them to be correct, but advises interested parties to confirm them before relying on them in a purchase decision.
Copyright 2026 MRED. All rights reserved.

The broker providing these data believes them to be correct, but advises interested parties to confirm them before relying on them in a purchase decision.
Copyright 2026 MRED. All rights reserved.
This IDX solution is (c) Diverse Solutions 2026.