|
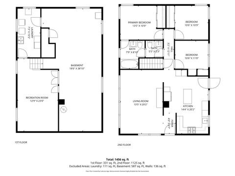
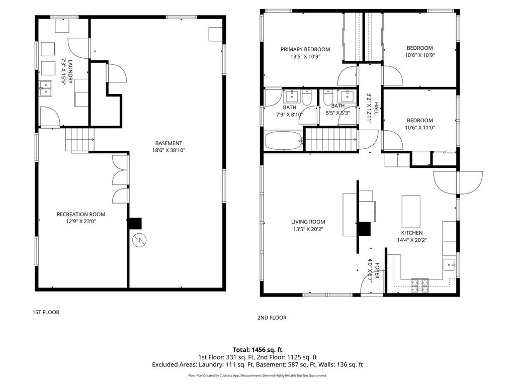
Great updated East Highland Park 3 bedroom ranch on a large, 50x210 lot! Land value plus you get an awesome house! Features a fantastic Brand New Kitchen, full basement with recreation room, work shop, laundry room, updated bathrooms, and 3 good sized bedrooms. (See long list of recent improvements). Brand new HVAC system ($16,000). Outside is an amazing yard with pretty landscaping and 1.5 car garage! Walk to downtown Highland Park, Metra, Newly Renovated Lincoln Park, Green Bay Trail, Rosewood Beach, Newly expanded library, and so much more! This is a great home and opportunity!
| DAYS ON MARKET | -6 | LAST UPDATED | 4/21/2026 |
|---|---|---|---|
| YEAR BUILT | 1955 | COMMUNITY | Highland Park |
| GARAGE SPACES | 1.0 | COUNTY | Lake |
| STATUS | Active | PROPERTY TYPE(S) | Single Family |
| School District | Highland Park High School |
|---|---|
| Elementary School | Indian Trail Elementary School |
| Jr. High School | Braeside Elementary School |
| High School | Highland Park High School |
| ADDITIONAL DETAILS | |
| AIR | Ceiling Fan(s), Central Air |
|---|---|
| AIR CONDITIONING | Yes |
| APPLIANCES | Dishwasher, Disposal, Dryer, Gas Cooktop, Humidifier, Microwave, Range, Refrigerator, Washer |
| AREA | Highland Park |
| BASEMENT | Full, Partially Finished, Yes |
| CONSTRUCTION | Brick, Cedar |
| GARAGE | Yes |
| HEAT | Forced Air, Natural Gas |
| INTERIOR | Entrance Foyer |
| LOT | 10454 sq ft |
| LOT DESCRIPTION | Landscaped |
| LOT DIMENSIONS | 50X210 |
| PARKING | Asphalt, Garage Door Opener, Detached, Garage |
| SEWER | Public Sewer |
| STYLE | Ranch |
| TAXES | 11499 |
| WATER | Public |
MORTGAGE CALCULATOR
TOTAL MONTHLY PAYMENT
0
P
I
*Estimate only
| SATELLITE VIEW |
| / | |
We respect your online privacy and will never spam you. By submitting this form with your telephone number
you are consenting for Humderto
Garcia to contact you even if your name is on a Federal or State
"Do not call List".
Listed with @properties Christie's International Real Estate
The data relating to real estate for sale on this web site comes in part from the Broker ReciprocitySM Program of MRED. All real estate listings are marked with the Broker ReciprocitySM logo or the MRED Broker ReciprocitySM thumbnail logo (a little black house) and detailed information about them includes the name of the listing brokers.
The broker providing these data believes them to be correct, but advises interested parties to confirm them before relying on them in a purchase decision.
Copyright 2026 MRED. All rights reserved.

The broker providing these data believes them to be correct, but advises interested parties to confirm them before relying on them in a purchase decision.
Copyright 2026 MRED. All rights reserved.
This IDX solution is (c) Diverse Solutions 2026.