|
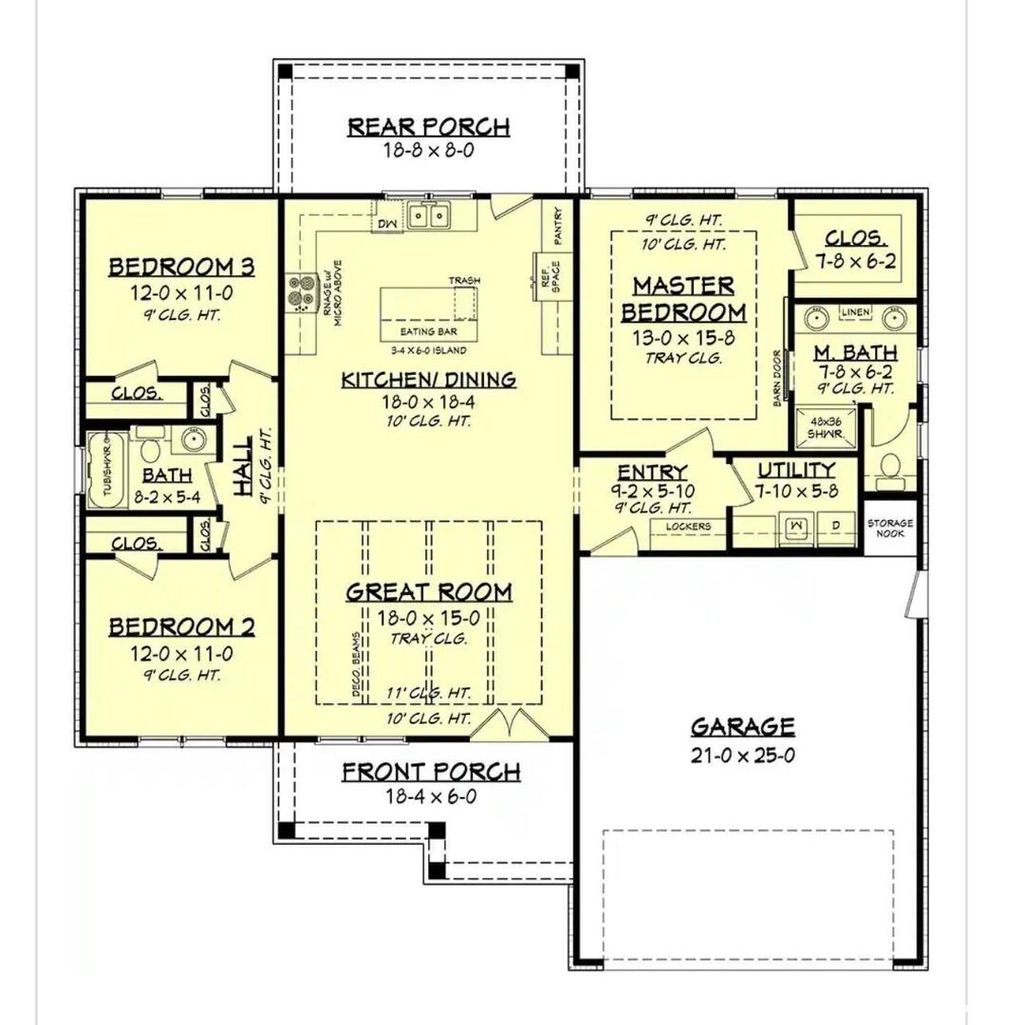
BRAND NEW CONSTRUCTION: one level, adorable ranch style home with 3 bedrooms, 2 baths, and a two car garage inside a private neighborhood north of Marion, Illinois. Reputable builder always impresses with quality construction and upgraded finishings, including nice flooring and more. Great opportunity to get a home before the holiday season. Split floor plan. All electric home. Current property taxes are for the lot only. Step into a well built and designed home.
| DAYS ON MARKET | 190 | LAST UPDATED | 12/17/2025 |
|---|---|---|---|
| TRACT | White Oak Estates | YEAR BUILT | 2025 |
| COMMUNITY | Durand | GARAGE SPACES | 2.0 |
| COUNTY | Williamson | STATUS | Conditional |
| PROPERTY TYPE(S) | Single Family |
| School District | Johnston City |
|---|---|
| Elementary School | Johnston City |
| Jr. High School | Johnston City |
| High School | Johnston City |
| ADDITIONAL DETAILS | |
| AIR | Central Air |
|---|---|
| AIR CONDITIONING | Yes |
| APPLIANCES | ENERGY STAR Qualified Appliances |
| AREA | Durand |
| CONSTRUCTION | Frame, Vinyl Siding |
| GARAGE | Attached Garage, Yes |
| HEAT | Heat Pump |
| INTERIOR | Vaulted Ceiling(s) |
| LOT | 0.46 acre(s) |
| LOT DESCRIPTION | Cul-de-sac, Other |
| LOT DIMENSIONS | 149x128 |
| PARKING | Garage Door Opener, Attached, Garage |
| SEWER | Public Sewer |
| STYLE | Ranch |
| SUBDIVISION | White Oak Estates |
| TAXES | 315 |
| WATER | Public |
MORTGAGE CALCULATOR
TOTAL MONTHLY PAYMENT
0
P
I
*Estimate only
| SATELLITE VIEW |
| / | |
We respect your online privacy and will never spam you. By submitting this form with your telephone number
you are consenting for Humderto
Garcia to contact you even if your name is on a Federal or State
"Do not call List".
Listed with Southern Illinois Realty Experts Herrin
The data relating to real estate for sale on this web site comes in part from the Broker ReciprocitySM Program of MRED. All real estate listings are marked with the Broker ReciprocitySM logo or the MRED Broker ReciprocitySM thumbnail logo (a little black house) and detailed information about them includes the name of the listing brokers.
The broker providing these data believes them to be correct, but advises interested parties to confirm them before relying on them in a purchase decision.
Copyright 2025 MRED. All rights reserved.

The broker providing these data believes them to be correct, but advises interested parties to confirm them before relying on them in a purchase decision.
Copyright 2025 MRED. All rights reserved.
This IDX solution is (c) Diverse Solutions 2025.