|
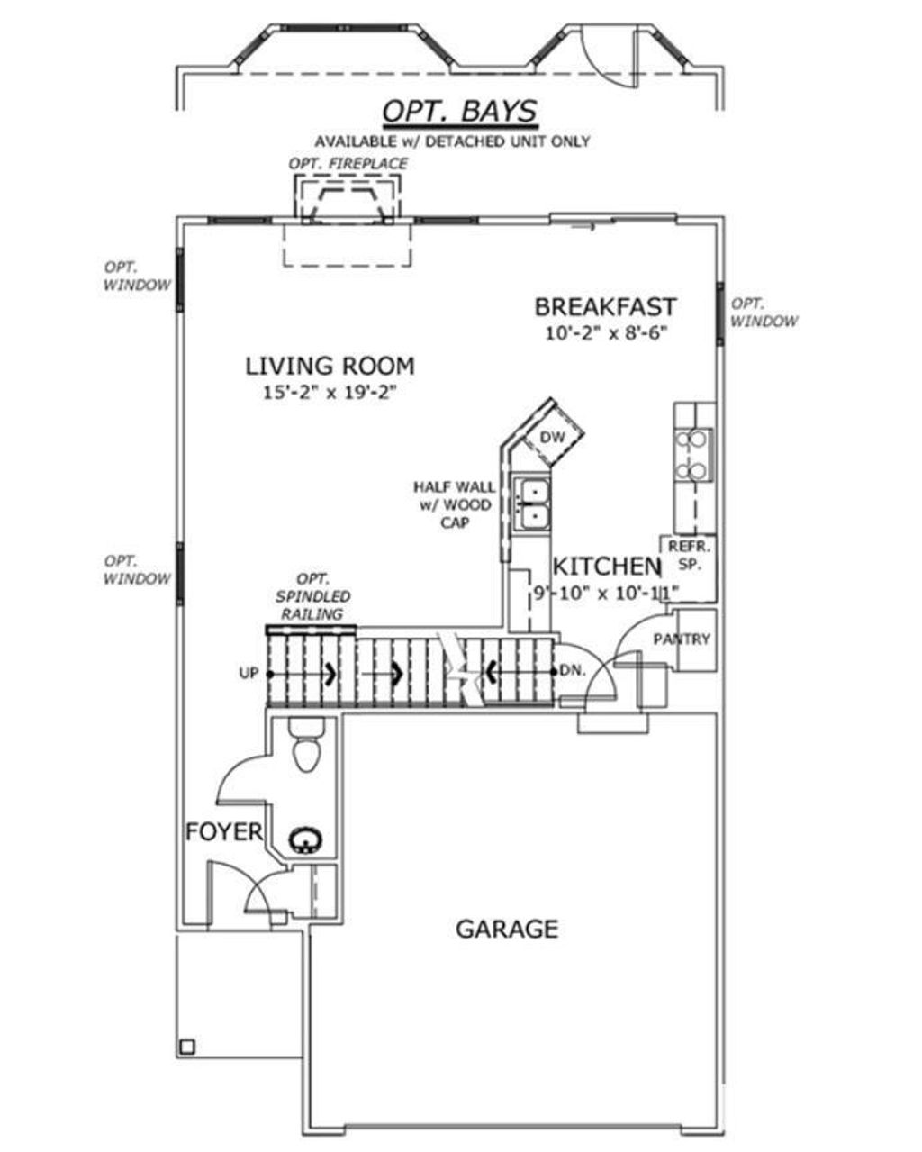
BUILD TO SUIT, 6 LOTS AVAILABLE. Bring your own design or choose from 3 beautiful designs. This design is the Burlington. Construction has notbegun yet, approximately 6-9 month build out. 813 Williams Way (Birch Design) is completed and ready to tour. OPTIONAL FINISHED BASEMENT WHICH CAN HAVE 1- 2 BR'S, 1 BATH AND A LARGE FAMILY ROOM. Lots 701, 705, 801, 805, 809 are available.
| DAYS ON MARKET | 161 | LAST UPDATED | 12/17/2025 |
|---|---|---|---|
| TRACT | Mansur Wood | YEAR BUILT | 2026 |
| COMMUNITY | Carbon Cliff | GARAGE SPACES | 2.0 |
| COUNTY | Rock Island | STATUS | Active |
| PROPERTY TYPE(S) | Condo/Townhouse/Co-Op |
| School District | United Township |
|---|---|
| High School | United Township |
| ADDITIONAL DETAILS | |
| AIR | Central Air |
|---|---|
| AIR CONDITIONING | Yes |
| AREA | Carbon Cliff |
| BASEMENT | Full, Unfinished, Yes |
| CONSTRUCTION | Vinyl Siding |
| GARAGE | Attached Garage, Yes |
| LOT | 0 |
| LOT DESCRIPTION | Level, Sloped, Wooded |
| LOT DIMENSIONS | 80x127x80x130 |
| PARKING | Attached, Garage |
| SEWER | Public Sewer |
| SUBDIVISION | Mansur Wood |
| TAXES | 608.96 |
| WATER | Public |
MORTGAGE CALCULATOR
TOTAL MONTHLY PAYMENT
0
P
I
*Estimate only
| SATELLITE VIEW |
| / | |
We respect your online privacy and will never spam you. By submitting this form with your telephone number
you are consenting for Humderto
Garcia to contact you even if your name is on a Federal or State
"Do not call List".
Listed with The Riverview Group - Epique Realty
The data relating to real estate for sale on this web site comes in part from the Broker ReciprocitySM Program of MRED. All real estate listings are marked with the Broker ReciprocitySM logo or the MRED Broker ReciprocitySM thumbnail logo (a little black house) and detailed information about them includes the name of the listing brokers.
The broker providing these data believes them to be correct, but advises interested parties to confirm them before relying on them in a purchase decision.
Copyright 2025 MRED. All rights reserved.

The broker providing these data believes them to be correct, but advises interested parties to confirm them before relying on them in a purchase decision.
Copyright 2025 MRED. All rights reserved.
This IDX solution is (c) Diverse Solutions 2025.