|
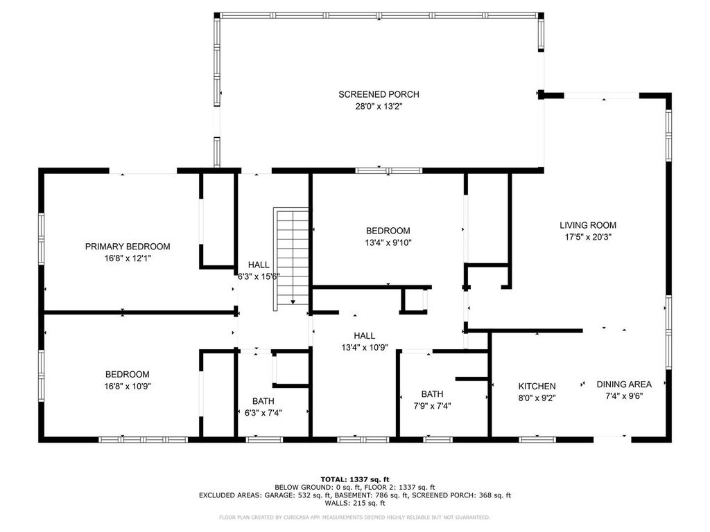
Welcome to your slice of paradise on Great River Road in scenic LeClaire, Iowa! Nestled in the Pleasant Valley School District with the bonus of county taxes, this raised ranch is a true catch-especially for boating enthusiasts! With deep water access and a built-in cantilevered dock right out your back door, your river adventures just got an upgrade complete with a private boat launch. Inside, you'll find an easy, breezy floor plan that includes 3 nicely sized bedrooms, 2 full remodeled bathrooms, a den or 4th bedroom space, and spacious great room, -perfect for relaxing or entertaining. The updated kitchen features sleek quartz countertops, stainless steel appliances, and enough sparkle to make you actually want to cook (maybe!). Step into the glass solarium room and prepare to be wowed by jaw-dropping river views and sunsets-the kind you usually only see in postcards. Outside, enjoy a low-maintenance composite decking, complete with a hot tub for soaking your cares away under the stars. Top it off with stylish, high-end window treatments throughout, and you've got a home that's as functional as it is fabulous. Other upgrades include epoxy basement and garage floors, tankless water heater, new storm doors, updated windows/sliders, and fresh paint. Come fall in love with the river life-you might never leave.
| DAYS ON MARKET | 138 | LAST UPDATED | 12/17/2025 |
|---|---|---|---|
| TRACT | Mississippi View | YEAR BUILT | 1950 |
| COMMUNITY | Le Claire | GARAGE SPACES | 2.0 |
| COUNTY | Scott | STATUS | Active |
| PROPERTY TYPE(S) | Single Family |
| School District | Pleasant Valley |
|---|---|
| Elementary School | Pleasant Valley |
| Jr. High School | Pleasant Valley |
| High School | Pleasant Valley |
| ADDITIONAL DETAILS | |
| APPLIANCES | Range, Refrigerator |
|---|---|
| AREA | Le Claire |
| BASEMENT | Full, Yes |
| CONSTRUCTION | Vinyl Siding |
| GARAGE | Attached Garage, Yes |
| HEAT | Forced Air, Natural Gas |
| LOT | 0.4 acre(s) |
| LOT DESCRIPTION | Level |
| LOT DIMENSIONS | 125x149 |
| PARKING | Attached, Garage, Basement, Guest |
| SEWER | Septic Tank |
| STYLE | Step Ranch |
| SUBDIVISION | Mississippi View |
| TAXES | 4556 |
| VIEW | Yes |
| VIEW DESCRIPTION | Water |
| WATERFRONT DESCRIPTION | Waterfront |
MORTGAGE CALCULATOR
TOTAL MONTHLY PAYMENT
0
P
I
*Estimate only
| SATELLITE VIEW |
| / | |
We respect your online privacy and will never spam you. By submitting this form with your telephone number
you are consenting for Humderto
Garcia to contact you even if your name is on a Federal or State
"Do not call List".
Listed with Ruhl&Ruhl REALTORS DeWitt
The data relating to real estate for sale on this web site comes in part from the Broker ReciprocitySM Program of MRED. All real estate listings are marked with the Broker ReciprocitySM logo or the MRED Broker ReciprocitySM thumbnail logo (a little black house) and detailed information about them includes the name of the listing brokers.
The broker providing these data believes them to be correct, but advises interested parties to confirm them before relying on them in a purchase decision.
Copyright 2025 MRED. All rights reserved.

The broker providing these data believes them to be correct, but advises interested parties to confirm them before relying on them in a purchase decision.
Copyright 2025 MRED. All rights reserved.
This IDX solution is (c) Diverse Solutions 2025.