|
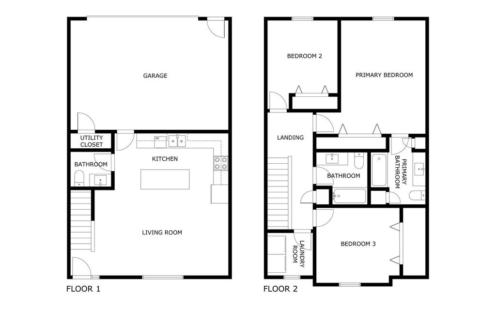
Welcome to these stunning new construction townhomes featuring 3 bedrooms, 3 bathrooms, and a spacious 2-car garage. Designed for modern living, these homes combine comfort, style, and convenience. All three bedrooms are located on the second floor, along with a laundry room for added ease and efficiency, creating a private and functional retreat separate from the main living areas. Centrally located, you'll enjoy being just minutes from grocery stores, medical facilities, shopping, large employers, and the charm of historic downtown. Spend weekends along the riverfront or take advantage of the easy highway access for a quick commute. With modern layouts and quality finishes, these townhomes are the perfect opportunity to enjoy comfort and convenience all in one place. The developer, in partnership with the City of Clinton is offering a $7500 grant to home buyers.
| DAYS ON MARKET | 115 | LAST UPDATED | 12/17/2025 |
|---|---|---|---|
| TRACT | None | YEAR BUILT | 2025 |
| COMMUNITY | Clinton | GARAGE SPACES | 2.0 |
| COUNTY | Clinton | STATUS | Active |
| PROPERTY TYPE(S) | Condo/Townhouse/Co-Op |
| School District | Clinton High |
|---|---|
| Jr. High School | Clinton |
| High School | Clinton High |
| ADDITIONAL DETAILS | |
| AIR | Central Air |
|---|---|
| AIR CONDITIONING | Yes |
| APPLIANCES | Dishwasher, Dryer, Microwave, Range, Refrigerator, Washer |
| AREA | Clinton |
| CONSTRUCTION | Vinyl Siding |
| GARAGE | Attached Garage, Yes |
| HEAT | Electric, Forced Air |
| LOT | 2614 sq ft |
| LOT DESCRIPTION | Level |
| LOT DIMENSIONS | 30 x 90 |
| PARKING | Attached, Garage |
| SEWER | Public Sewer |
| SUBDIVISION | None |
| WATER | Public |
MORTGAGE CALCULATOR
TOTAL MONTHLY PAYMENT
0
P
I
*Estimate only
| SATELLITE VIEW |
| / | |
We respect your online privacy and will never spam you. By submitting this form with your telephone number
you are consenting for Humderto
Garcia to contact you even if your name is on a Federal or State
"Do not call List".
Listed with Ruhl&Ruhl REALTORS Clinton
The data relating to real estate for sale on this web site comes in part from the Broker ReciprocitySM Program of MRED. All real estate listings are marked with the Broker ReciprocitySM logo or the MRED Broker ReciprocitySM thumbnail logo (a little black house) and detailed information about them includes the name of the listing brokers.
The broker providing these data believes them to be correct, but advises interested parties to confirm them before relying on them in a purchase decision.
Copyright 2025 MRED. All rights reserved.

The broker providing these data believes them to be correct, but advises interested parties to confirm them before relying on them in a purchase decision.
Copyright 2025 MRED. All rights reserved.
This IDX solution is (c) Diverse Solutions 2025.