|
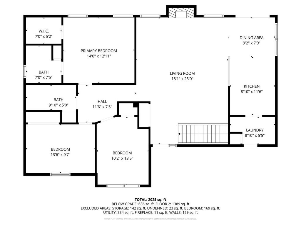
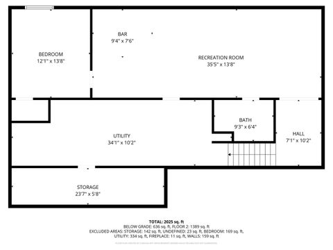
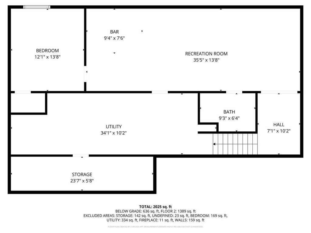
Welcome to this beautiful ranch home in North Davenport! Featuring main floor laundry and three spacious bedrooms on the main level, including a primary suite, a relaxing soaker tub and updated bathrooms! The open-concept layout is filled with natural light and ready to entertain. The finished basement expands your living space with a large recreation room and full wet bar. There's also potential for a fourth bedroom in the unfinished area, already equipped with an egress window. Step outside to enjoy the beautifully landscaped backyard oasis, complete with a patio, custom pergola, and gas firepit-ideal for cozy midwest evenings This move-in-ready home combines functionality, charm, and great entertaining space
| DAYS ON MARKET | 62 | LAST UPDATED | 12/17/2025 |
|---|---|---|---|
| TRACT | Seifert Northwest | YEAR BUILT | 2005 |
| COMMUNITY | Out of Market Area | GARAGE SPACES | 2.0 |
| COUNTY | Scott | STATUS | Conditional |
| PROPERTY TYPE(S) | Single Family |
| School District | Davenport |
|---|---|
| High School | Davenport |
| ADDITIONAL DETAILS | |
| APPLIANCES | Dishwasher, Disposal, Dryer, Range, Range Hood, Refrigerator, Washer |
|---|---|
| AREA | Out of Market Area |
| BASEMENT | Finished, Full, Sump Pump, Yes |
| CONSTRUCTION | Vinyl Siding |
| GARAGE | Attached Garage, Yes |
| HEAT | Forced Air |
| INTERIOR | Built-in Features |
| LOT | 0 |
| LOT DESCRIPTION | Level |
| LOT DIMENSIONS | 70x120 |
| PARKING | Attached, Garage |
| SEWER | Public Sewer |
| STYLE | Ranch |
| SUBDIVISION | Seifert Northwest |
| TAXES | 3876 |
| WATER | Public |
MORTGAGE CALCULATOR
TOTAL MONTHLY PAYMENT
0
P
I
*Estimate only
| SATELLITE VIEW |
| / | |
We respect your online privacy and will never spam you. By submitting this form with your telephone number
you are consenting for Humderto
Garcia to contact you even if your name is on a Federal or State
"Do not call List".
Listed with BUY SELL BUILD QC - Real Broker, LLC
The data relating to real estate for sale on this web site comes in part from the Broker ReciprocitySM Program of MRED. All real estate listings are marked with the Broker ReciprocitySM logo or the MRED Broker ReciprocitySM thumbnail logo (a little black house) and detailed information about them includes the name of the listing brokers.
The broker providing these data believes them to be correct, but advises interested parties to confirm them before relying on them in a purchase decision.
Copyright 2025 MRED. All rights reserved.

The broker providing these data believes them to be correct, but advises interested parties to confirm them before relying on them in a purchase decision.
Copyright 2025 MRED. All rights reserved.
This IDX solution is (c) Diverse Solutions 2025.