|
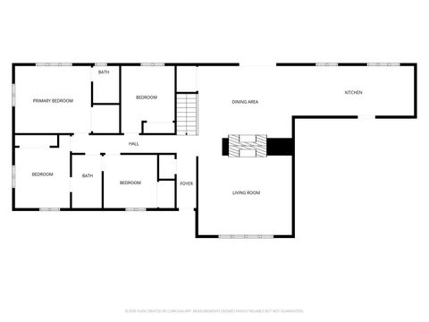
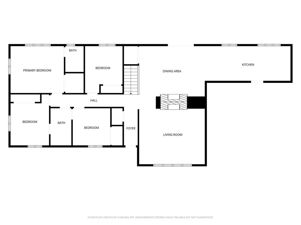
Don't miss this great opportunity to own a lake front home. This 4 BR, 3 BA Ranch home has a lot to offer. There is over 2,600 Sq. Ft. of finished living space. Enjoy the spacious living room that features a vaulted ceiling and fireplace. Dining area also features its own fireplace. In the summertime enjoy your lake view from your NEW 16x12 deck. You can also enjoy the lake view from the eat-in kitchen. The walk-out basement offers lots of additional living space and fireplace. Storage area is abundant with room for a workshop. Updates in 2025 include the new deck, roof, 200 amp electrical panel, sliding glass door in basement, all new paint inside and out. 2024 new A/C, dishwasher, and water softener. There is a 2 car attached garage and boat dock. Home sold "AS-IS". One of the executors in a licensed Realtor in Iowa. HOA Fee $200 per quarter.
| DAYS ON MARKET | 31 | LAST UPDATED | 12/17/2025 |
|---|---|---|---|
| TRACT | Rustic Acres | YEAR BUILT | 1974 |
| COMMUNITY | Colona | GARAGE SPACES | 2.0 |
| COUNTY | Henry | STATUS | Active |
| PROPERTY TYPE(S) | Single Family |
| School District | Geneseo High School |
|---|---|
| High School | Geneseo High School |
| ADDITIONAL DETAILS | |
| APPLIANCES | Dishwasher, Disposal, Dryer, Washer, Water Softener Owned |
|---|---|
| AREA | Colona |
| BASEMENT | Daylight, Full, Partially Finished, Sump Pump, Walk-Out Access, Yes |
| CONSTRUCTION | Frame, Wood Siding |
| FIREPLACE | Yes |
| GARAGE | Attached Garage, Yes |
| HEAT | Forced Air, Natural Gas |
| HOA DUES | 800 |
| INTERIOR | Vaulted Ceiling(s) |
| LOT | 0 |
| LOT DESCRIPTION | Cul-de-sac, Sloped |
| LOT DIMENSIONS | 102 X 261 X 67 X 270 |
| PARKING | Gravel, Garage Door Opener, Attached, Garage |
| SEWER | Septic Tank |
| STYLE | Ranch |
| SUBDIVISION | Rustic Acres |
| TAXES | 6011 |
| WATERFRONT DESCRIPTION | Pond, Waterfront |
MORTGAGE CALCULATOR
TOTAL MONTHLY PAYMENT
0
P
I
*Estimate only
| SATELLITE VIEW |
| / | |
We respect your online privacy and will never spam you. By submitting this form with your telephone number
you are consenting for Humderto
Garcia to contact you even if your name is on a Federal or State
"Do not call List".
Listed with Mel Foster Co. Davenport
The data relating to real estate for sale on this web site comes in part from the Broker ReciprocitySM Program of MRED. All real estate listings are marked with the Broker ReciprocitySM logo or the MRED Broker ReciprocitySM thumbnail logo (a little black house) and detailed information about them includes the name of the listing brokers.
The broker providing these data believes them to be correct, but advises interested parties to confirm them before relying on them in a purchase decision.
Copyright 2025 MRED. All rights reserved.

The broker providing these data believes them to be correct, but advises interested parties to confirm them before relying on them in a purchase decision.
Copyright 2025 MRED. All rights reserved.
This IDX solution is (c) Diverse Solutions 2025.