|
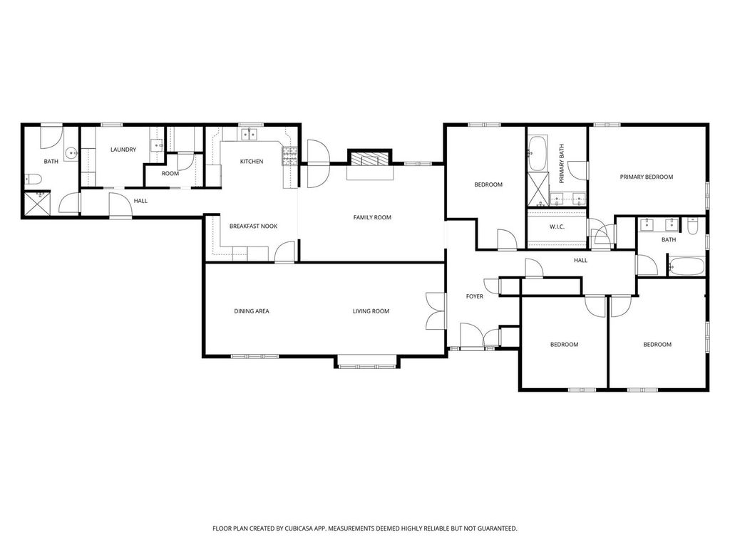
A well-maintained 4-bedroom, 3-bath home offering 2560 square feet in the desirable Rolling Hills Estates subdivision-located next to Marion High School and with quick access to Illinois 13, Route 37, and I-57. Inside, you'll find two spacious living areas with a blend of hardwood and tile flooring. The recently renovated kitchen brings a fresh, modern feel to the heart of the home. The family room includes a wood-burning fireplace and walkout access to the backyard Important updates include a brand new roof just installed, two recently updated water heaters, a 3-year-old furnace, and a new dishwasher. The primary suite features a thoughtfully updated bathroom with heated tile floors and shower controls positioned outside the water stream so you can warm the water before stepping in. One of the additional bathrooms also offers direct access to the backyard, providing convenient entry for pool guests. A generous laundry room adds everyday practicality, featuring an upgraded dryer with a built-in hanging system designed to dry clothes without wrinkles Outside, the massive backyard is built for entertaining. The 18 32 saltwater pool is five feet deep, easy to maintain, and includes updated underground electrical service and a new pump. With plenty of green space surrounding it, the yard is perfect for gatherings, relaxing, or outdoor activities This is a well-cared-for home in one of Marion's most sought-after subdivisions, offering updates, space and prime location
| DAYS ON MARKET | 18 | LAST UPDATED | 12/17/2025 |
|---|---|---|---|
| TRACT | Rolling Hills Estates | YEAR BUILT | 1979 |
| COMMUNITY | Durand | GARAGE SPACES | 2.0 |
| COUNTY | Williamson | STATUS | Active |
| PROPERTY TYPE(S) | Single Family |
| School District | Marion |
|---|---|
| Elementary School | Longfellow |
| Jr. High School | Marion |
| High School | Marion |
| ADDITIONAL DETAILS | |
| AIR | Central Air |
|---|---|
| AIR CONDITIONING | Yes |
| APPLIANCES | Dishwasher, Disposal, Dryer, Microwave, Range, Range Hood, Refrigerator, Washer |
| AREA | Durand |
| BASEMENT | Crawl Space |
| CONSTRUCTION | Block |
| FIREPLACE | Yes |
| GARAGE | Attached Garage, Yes |
| HEAT | Forced Air |
| LOT | 0.42 acre(s) |
| LOT DESCRIPTION | Level |
| LOT DIMENSIONS | 123x152 |
| PARKING | Attached, Garage, Parking Lot |
| POOL DESCRIPTION | In Ground |
| SEWER | Public Sewer |
| STYLE | Ranch |
| SUBDIVISION | Rolling Hills Estates |
| TAXES | 5037.24 |
| WATER | Public |
MORTGAGE CALCULATOR
TOTAL MONTHLY PAYMENT
0
P
I
*Estimate only
| SATELLITE VIEW |
| / | |
We respect your online privacy and will never spam you. By submitting this form with your telephone number
you are consenting for Humderto
Garcia to contact you even if your name is on a Federal or State
"Do not call List".
Listed with House 2 Home Realty Marion
The data relating to real estate for sale on this web site comes in part from the Broker ReciprocitySM Program of MRED. All real estate listings are marked with the Broker ReciprocitySM logo or the MRED Broker ReciprocitySM thumbnail logo (a little black house) and detailed information about them includes the name of the listing brokers.
The broker providing these data believes them to be correct, but advises interested parties to confirm them before relying on them in a purchase decision.
Copyright 2025 MRED. All rights reserved.

The broker providing these data believes them to be correct, but advises interested parties to confirm them before relying on them in a purchase decision.
Copyright 2025 MRED. All rights reserved.
This IDX solution is (c) Diverse Solutions 2025.