|
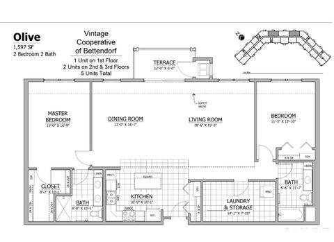
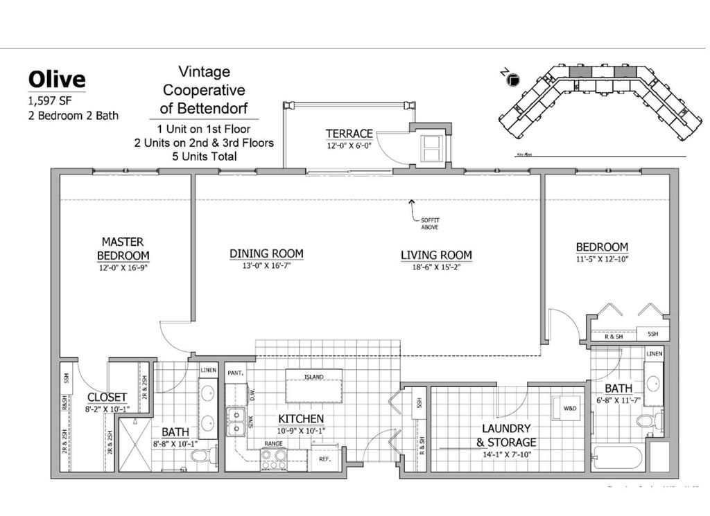
Welcome to Bettendorfs premier 55 and over luxury community. This top floor, 1,597 sq ft condo stands above the rest with over 40k in thoughtful upgrades. Step inside to soaring 9 ft ceilings and an expansive open layout. The upgraded kitchen is a showpiece with quartz c-tops, tiled backsplash, under cabinet lighting, abundant cabinetry, and a large island. The living and dining areas are filled with natural light and feature a 7 ft slider that leads to a NE facing terrace. Two generous brs, two well-appointed bathrooms and an oversized laundry rm that offers a utility sink and exceptional storage. Residents enjoy resort-style amenities: a fitness center, a welcoming lounge with a TV and pool table, plus a grand club room with fireplace, another full kitchen, seating for 50+, and an expansive deck for entertaining. Additional conveniences include a heated garage, car wash bay, optional storage lockers, and a workshop. Monthly fees may be higher, but they cover nearly all living expenses, allowing you to enjoy a low-maintenance, lock-and-leave lifestyle in one of Bettendorfs most desirable senior communities. Unit 313 delivers luxury, convenience, and peace of mind all in one. Come experience the best of 55+ living. Owner will replace carpet with an acceptable offer.
| DAYS ON MARKET | 21 | LAST UPDATED | 12/17/2025 |
|---|---|---|---|
| TRACT | None | YEAR BUILT | 2021 |
| COMMUNITY | Bettendorf | GARAGE SPACES | 1.0 |
| COUNTY | Scott | STATUS | Active |
| PROPERTY TYPE(S) | Condo/Townhouse/Co-Op |
| School District | Bettendorf |
|---|---|
| High School | Bettendorf |
| ADDITIONAL DETAILS | |
| AIR | Central Air |
|---|---|
| AIR CONDITIONING | Yes |
| AMENITIES | Maintenance Grounds, Snow Removal, Trash |
| APPLIANCES | Dishwasher, Disposal, Dryer, Microwave, Range, Refrigerator, Washer |
| AREA | Bettendorf |
| CONSTRUCTION | Frame, Vinyl Siding |
| GARAGE | Attached Garage, Yes |
| HEAT | Forced Air, Natural Gas |
| INTERIOR | Vaulted Ceiling(s) |
| LOT | 6.86 acre(s) |
| LOT DESCRIPTION | Level |
| LOT DIMENSIONS | Irregular |
| PARKING | Shared Driveway, Heated Garage, Garage Door Opener, Attached, Guest, Basement, Garage |
| SEWER | Public Sewer |
| STORIES | 3 |
| SUBDIVISION | None |
| WATER | Public |
MORTGAGE CALCULATOR
TOTAL MONTHLY PAYMENT
0
P
I
*Estimate only
| SATELLITE VIEW |
| / | |
We respect your online privacy and will never spam you. By submitting this form with your telephone number
you are consenting for Humderto
Garcia to contact you even if your name is on a Federal or State
"Do not call List".
Listed with BUY SELL BUILD QC - Real Broker, LLC
The data relating to real estate for sale on this web site comes in part from the Broker ReciprocitySM Program of MRED. All real estate listings are marked with the Broker ReciprocitySM logo or the MRED Broker ReciprocitySM thumbnail logo (a little black house) and detailed information about them includes the name of the listing brokers.
The broker providing these data believes them to be correct, but advises interested parties to confirm them before relying on them in a purchase decision.
Copyright 2025 MRED. All rights reserved.

The broker providing these data believes them to be correct, but advises interested parties to confirm them before relying on them in a purchase decision.
Copyright 2025 MRED. All rights reserved.
This IDX solution is (c) Diverse Solutions 2025.