|
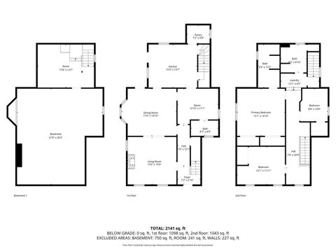
Constructed in 1869, the Levi & Mary Haverstick House is a restored historic residence located within the Broadway Historic District. The property retains significant original architectural features, including hardwood flooring, tall window openings, and handcrafted curved woodwork, reflecting 19th-century craftsmanship. The home has undergone a comprehensive renovation, incorporating modern systems and finishes while preserving its historic integrity. The main level features a series of formal and secondary rooms consistent with the original layout, providing flexible use options. The second level includes a primary bedroom with double closets and a remodeled full bathroom. Additional bedrooms share an updated full bath. A second-floor laundry area has been added for functionality. This residence represents a blend of preserved historical character and updated interior amenities, offering a well-maintained example of period architecture adapted for contemporary use.
| DAYS ON MARKET | 19 | LAST UPDATED | 12/17/2025 |
|---|---|---|---|
| YEAR BUILT | 1869 | COMMUNITY | Rock Island |
| COUNTY | Rock Island | STATUS | Active |
| PROPERTY TYPE(S) | Single Family |
| ADDITIONAL DETAILS | |
| AIR | Central Air |
|---|---|
| AIR CONDITIONING | Yes |
| AREA | Rock Island |
| BASEMENT | Full, Unfinished, Yes |
| FIREPLACE | Yes |
| HEAT | Forced Air |
| LOT | 0 |
| LOT DESCRIPTION | Corner Lot |
| LOT DIMENSIONS | 90x60 |
| PARKING | No Garage, Parking Lot |
| SEWER | Public Sewer |
| WATER | Public |
MORTGAGE CALCULATOR
TOTAL MONTHLY PAYMENT
0
P
I
*Estimate only
| SATELLITE VIEW |
| / | |
We respect your online privacy and will never spam you. By submitting this form with your telephone number
you are consenting for Humderto
Garcia to contact you even if your name is on a Federal or State
"Do not call List".
Listed with Real Broker, LLC - Bettendorf
The data relating to real estate for sale on this web site comes in part from the Broker ReciprocitySM Program of MRED. All real estate listings are marked with the Broker ReciprocitySM logo or the MRED Broker ReciprocitySM thumbnail logo (a little black house) and detailed information about them includes the name of the listing brokers.
The broker providing these data believes them to be correct, but advises interested parties to confirm them before relying on them in a purchase decision.
Copyright 2025 MRED. All rights reserved.

The broker providing these data believes them to be correct, but advises interested parties to confirm them before relying on them in a purchase decision.
Copyright 2025 MRED. All rights reserved.
This IDX solution is (c) Diverse Solutions 2025.